Numer oferty:
408 334


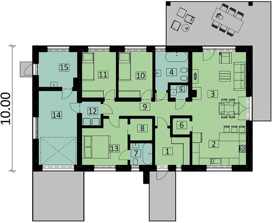
Łęgi, gmina Dobra, malowniczo położona miejscowość ok 19 km od centrum Szczecina, w pobliżu (5km) rezerwatu przyrody Świdwie.KUPUJĄCY ZWOLNIONY Z 2% PCC.Parterowy jednorodzinny dom wolnostojący , STAN DEWELOPERSKI . garaż1. Wiatrołap 7,51 m?2. Kuchnia 15,59 m?3. Pokój dzienny + jadalnia 24,17 m?4. Łazienka 7,54 m?5. Wc 1,62 m?6. Spiżarnia 2,01 m?7. Łazienka 3,39 m?8. Garderoba 3,39 m?9. Korytarz 10,54 m?10. Pokój 10,44 m?11. Pokój 10,44 m?12. Pom. gospodarcze 3,16 m?13. Pokój 12,84 m?14. Garaż jednostanowiskowy 19,20 m?15. Kotłownia 8,94 m?Poddasze ok 40 m2okna: Krispol trzyszybowe z ciepłą ramką, kolor zewn. antracyt, kolor wewn. białyrolety zewnętrzne: Krispol sterowane pilotemDach dwuspadowy, dachówka ceramiczna płaska Koramicmedia: woda z sieci, gaz, prąd, kanalizacja: szambo 10 m3, zbiornik na deszczówkę 5 m3. Wszystkie instalacje doprowadzone do budynku.Ogrzewanie gazowe, ocieplenie stropu wełna 20cmpis techniczny:fundamenty : ławy żelbetowe beton B25,ściany fundamentowe z bloczków betonowych ocieplone styropianem wodoodpornym grub. 15 cm, folia kubełkowa,izolacja przeciwwodna pozioma i pionowaściany zewnętrzne i nośne: bloczek z betonu komórkowego Ytong grub. 24 cm z "ciepłą" spoinąściany działowe: bloczek z betonu komórkowego Ytong grub. 11,5 cmwięźba dachowa: wiązary prefabrykowane z drewna klasy C24 zaimpregnowane grzybo i ognioochronnym impregnatempokrycie dachowe: dachówka ceramiczna płaska Koramicokna: Krispol trzyszybowe z ciepłą ramką, kolor zewn. antracyt, kolor wewn. białyrolety zewnętrzne: Krispol sterowane pilotembrama garażowa: Krispol z napędemdrzwi: Wikędpodłoga na poddaszu (niewliczane do metrażu): płyty OSB na konstrukcji drewnianej, około 40 m2, schody strychowe Fakrow kotłowni sufit podwieszany z płyt G-K ppoż. oraz docieplenie stropu wełną 25 cmcały strop docieplony wełną mineralną grub. 20 cmelewacja: styropian grub. 20 cm, tynk akrylowo-silikonowy z imitacją drewnaposadzka: cementowa zaizolowana styropianem grub.20 cmtynki: gipsowe, w łazienkach cementowo - wapienneinstalacje: elektryczna, telewizyjna, domofonowa, alarmowa, gniazdo trójfazowe w garażu i kuchniinstalacja c.o. : podłogówka w całym domu, kocioł Vaillant Ecotec pro z zasobnikiem Biawar 150, sterowniki w każdej sypialni i salonie, w łazienkach oprócz podłogówki grzejniki elektrycznekomin dymowy w salonieinstalacja gazowa: gaz w kotłowni i kuchniinstalacja wodna, kanalizacyjna, wentylacja grawitacyjnazagospodarowanie terenu: mur od frontu, teren wyrównanymedia: woda z sieci, gaz, prąd, kanalizacja: szambo 10 m3, zbiornik na deszczówkę 5 m3Wszystkie instalacje doprowadzone do budynku.Cena nie obejmuje sufitu podwieszanego z płyt G-K (oprócz kotłowni) oraz podjazdu.Możliwość wykonania za dodatkową opłatą.*powyższe informacje zostały sporządzone na podstawie oświadczeń i nie są ofertą w rozumieniu przepisów prawa - zalecamy ich osobistą weryfikację.
