Numer oferty: 438 130

Nowoczesny dom wolnostojący wybudowany według indywidualnego projektu o powierzchni użytkowej 151m2. Termin zakończenia budowy III kwartał 2026 roku. Nieruchomość sprzedawana w stanie deweloperskim. Lokalizacja; w malowniczej i spokojnej części miejscowości Bezrzecze, gmina Dobra, powiat policki. Doskonała propozycja dla osób szukających przestrzeni do własnej aranżacji i życia w bliskim kontakcie z naturą. Sąsiedztwo domków jednorodzinnych. Powierzchnia ogrodu 610m?.

Budynek wykonany z betonu komórkowego, ocieplony. Dach kryty blachodachówką.
Na powierzchnię użytkową budynku składają się:
Parter:
- przestronny salon połączony z kuchnią o łącznej powierzchni 37m? oraz z wyjściem na ogród.
- pokój 13,63m?
- łazienka, pomieszczenie gospodarcze, spiżarnia
- garaż jednostanowiskowy z bramą na pilota
- korytarz, schody na piętro
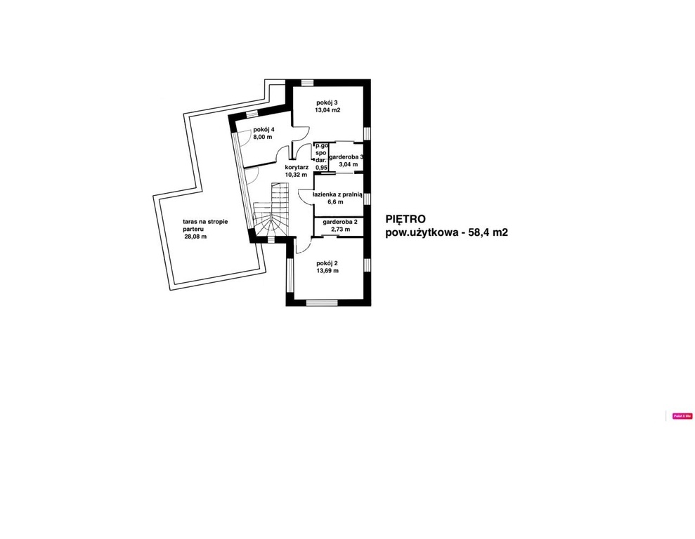
Piętro:
- trzy sypialnie, z jednej wyjście na taras o powierzchni 28m?
- łazienka z oknem
Okna PCV trzyszybowe. Ściany gładzone i malowane na biało. Drzwi tarasowe przesuwane. Ogrzewanie gazowe podłogowe. Kanalizacja szambo. Teren ogrodzony. Dojazd do garażu wyłożony polbrukiem.

Jest to idealna propozycja dla osób, które pragną mieszkać w spokojnej okolicy, w domu z dużym potencjałem i możliwością personalizacji.
*powyższe informacje zostały sporządzone na podstawie oświadczeń i nie są ofertą w rozumieniu przepisów prawa - zalecamy ich osobistą weryfikację.

Kalkulator opłat dodatkowych
Drukuj tę ofertę ze zdjęciami
Drukuj tę ofertę z miniaturkami
Drukuj tę ofertę bez zdjęć
Share |
miejscowość:BEZRZECZE
typ domu:WOLNO STOJĄCY
cena ofertowa PLN:1 590 000
pow. całkowita [m²]:151
pow. użytkowa [m²]:151
pow. działki [m²]:610
liczba pokoi:5
standard:DO WYKOŃCZENIA
rok budowy:2 026
materiał ścian:YTONG
ogrzewanie:C.O. GAZOWE
źródło c.w.:PIEC GAZOWY
przynależne:GARAŻ, OGRÓDEK
Centrum Nieruchomości


edyta@cn.info.pl

Imię i nazwisko
Twój e-mail
Twój telefon
Temat
Treść
Czy jesteś botem?
Wyślij kopię również do mnie