Numer oferty:
431 029


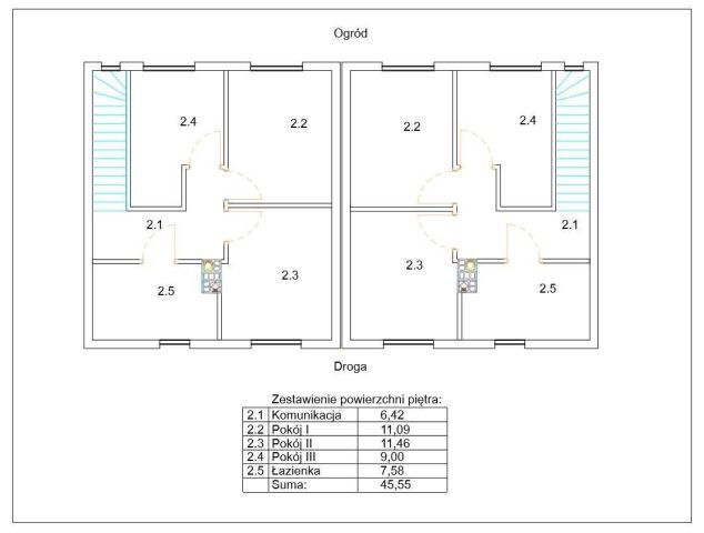
Oferuję na sprzedaż prawy segment domu z garażem w zabudowie bliźniaczej położony w Dołujach.Dom o bardzo funkcjonalnej i ergonomicznej architekturze oraz konstrukcji.Na parterze znajduje się przestronny salon, duża kuchnia i łazienka. Drugie piętro z trzema sypialniami i dużą, doświetloną naturalnym światłem łazienką.Bardzo staranne docieplenie budynku i zastosowanie sprawdzonych materiałów gwarantuje, że dom będzie tani w utrzymaniu oraz praktyczny w użytkowaniu!Istnieje możliwość zamontowania fotowoltaiki.Do domu jest dojazd utwardzoną drogą gminną.Działka każdej połówki domu ma powierzchnię 600 m?,Dom posiada bardzo duże ogrody o pow. 440 m2 każdy z idealnym ustawieniem wobec kierunków świata.Powierzchnia domu 118,36 m?,- dwie pełne kondygnacje (brak skosów i wykuszy)- na parterze: wiatrołap, salon z jadalnią, kuchnia, łazienka, garaż- na piętrze: trzy pokoje i łazienka- możliwość adaptacji strychu na schowek.Dom posiada wszystkie media: prąd, gaz, woda z wodociągu miejskiego, kanalizacja gminna, zbiornik na wodę deszczową. Segment wyposażony jest w instalacje: elektryczne, wodno-kanalizacyjną, ogrzewanie podłogowe z gazowym piecem dwufunkcyjnym z zasobnikiem ciepłej wody użytkowej. Każda połówka domu będzie posiadała oddzielną Księgę Wieczystą.Ogrodzenie frontowe zostanie uzupełnione o metalowe przęsła oraz furtkę i bramę przesuwną. Nad wejściem zostanie zamontowane zadaszenie podobnego typu jak na załączonym zdjęciu.Polecam i zapraszamy na prezentację.*powyższe informacje zostały sporządzone na podstawie oświadczeń i nie są ofertą w rozumieniu przepisów prawa - zalecamy ich osobistą weryfikację.
