Numer oferty: 439 002

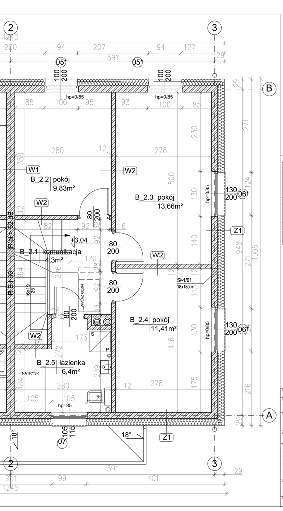
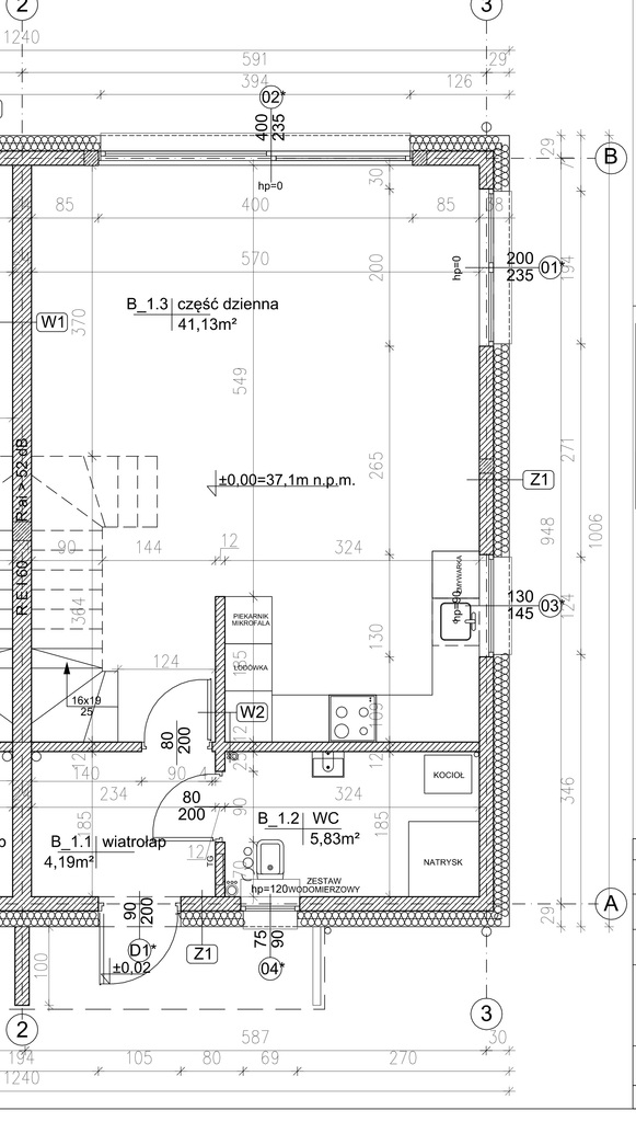
Na sprzedaż bliźniak o pow. 101 m2 w Dołujach na działce o powierzchni ok. 220 m2 .Dom sprzedawany jako lokal mieszkalny w budynku jednorodzinnym. Inwestycja składa się z 2 budynków jednorodzinnych dwulokalowych.Na powierzchnię użytkową domu składają się :Parter : wiatrołap o pow. 4,19 m2 , łazienka 5,83 m2 oraz duży salon z aneksem kuchennym o pow.41,13 m2 z wyjściem na taras i ogród od strony północnej lub zachodniejPiętro : 3 sypialnie o pow. 9,83m2, 13,66 m2,11,41 m2 oraz łazienka o pow.5,0 m2 korytarz 10,00 m2 .Głównym atutem nieruchomości jest doskonała lokalizacja w cichej i spokojnej uliczce w Dołujach niedaleko lasu i terenów zielonych.Dojazd do nieruchomości drogą gminną utwardzoną, oświetlenie przy drodze.Standard wykończenia:- ławy żelbetowe monolityczne,- ściany fundamentowe betonowe,- strop żelbetowy monolityczny,- ściany zew. murowane z bloczków silikatowych , ocieplenie styropian- ściany wew. nośne murowane z bloczków silikatowych ,-ścianki działowe murowane z pustaków-więźba dachowa prefabrykowana, dach wełna mineralna-kocioł gazowy z zasobnikiem na ciepłą wodę- instalacja pod alarm, TV,- internet, domofon,- okna 3 szybowe PCV o współczynniku 1,0 Wmk- rolety elektryczne tylko na parterze- blacho-dachówka ,- ogród - teren wyrównany,- taras- wylewka betonowa,- zbiornik retencyjny na deszczówkę 10 m3,- kanalizacja - sieć kanalizacyjna,- od frontu utwardzony podjazd oraz chodnik- 2 miejsca postojowe,- ogrzewanie podłogowe we wszystkich pomieszczeniach- rekuperacja- teren ogrodzony z podjazdem- wykonana pełna instalacja elektryczna z łącznikami i gniazdkami- wszystkie ściany gładzone i pomalowane na kolor biały- trawnik- taras od strony ogroduWydanie budynku w stanie developerskim wrzesień / październik 2026 rZapraszam zainteresowanych na prezentację .*powyższe informacje zostały sporządzone na podstawie oświadczeń i nie są ofertą w rozumieniu przepisów prawa - zalecamy ich osobistą weryfikację.

Kalkulator opłat dodatkowych
Drukuj tę ofertę ze zdjęciami
Drukuj tę ofertę z miniaturkami
Drukuj tę ofertę bez zdjęć
Share |
miejscowość:DOŁUJE
typ domu:BLIŹNIACZY
cena ofertowa PLN:850 000
pow. całkowita [m²]:101,05
pow. użytkowa [m²]:101,05
pow. działki [m²]:220
liczba pokoi:4
standard:DO WYKOŃCZENIA
rok budowy:2 026
pokrycie dachu:DACHÓWKA CERAMICZNA
materiał ścian:YTONG
źródło c.w.:POMPA CIEPŁA
przynależne:GARAŻ, OGRÓDEK, TARAS
forma własności działki:WŁASNOŚĆ
Centrum Nieruchomości


edyta@cn.info.pl

Imię i nazwisko
Twój e-mail
Twój telefon
Temat
Treść
Czy jesteś botem?
Wyślij kopię również do mnie