Numer oferty: 437 340

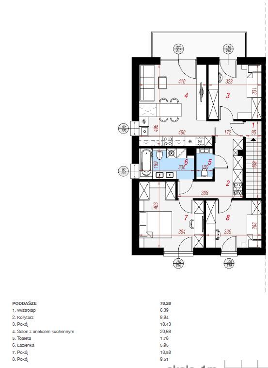
JUŻ DZISIAJ UMÓW SIĘ NA PREZENTACJĘ!!!Przedmiotem sprzedaży jest LOKAL MIESZKALNY w stanie do wykończenia, wybudowany w technologii tradycyjnej według indywidualnego projektu.Nieruchomość położona w GOLENIOWIE, na cichym i spokojnym osiedlu domków jednorodzinnych.Mieszkanie znajduje się w budynku czterolokalowym, położony na działce o pow. 338 m2, częściowo ogrodzonej. Dojazd drogą gminną gruntową.Przed budynkiem wykonana kostka polbrukowa.W ofercie także lokal na parterze z ogródkiem.Media - prąd, woda i kanalizacja z sieci miejskiej.Ogrzewanie - gaz (w cenie piec gazowy)Mieszkanie o pow. użytkowa 78,26 m2, na którą składa się:- salon z aneksem kuchennym - 20,68 m? (wyjście na taras),- pokoje - 10,43 m?; 13,58 m? ; 9,51 m?- łazienka - 5,95 m?,- toaleta - 1,78 m?,- hol - 9,94 m2,- wiatrołap - 6,39 m2KONSTRUKCJA:- Ściany konstrukcyjne - bloczki beton komórkowy 24 cm, ściany wewnętrzne - bloczki beton komórkowy 12 cm,- Strop - betonowy,- Ocieplenie ścian zewnętrznych - styropian 20 cm,- Pokrycie dachu - dachówka.STANDARD WYKOŃCZENIA- drzwi wejściowe,- okna PCV 3-szybowe + okno tarasowe,- instalacja - elektryczna, wodna, kanalizacyjna, gazowa (piec gazowy), RTV,- ocieplenie stropu - wełna,- kaloryfery.W pokojach ściany gładzone malowane, podłogi posadzki. 2 miejsca postojowe na podjeździe.Koszty związane z nabyciem nieruchomości:- opłaty u notariusza - taksa notarialna, podatek PCC, opłaty sądowe, opłata za wypisy aktu,- wynagrodzenie biura nieruchomości za usługę pośrednictwa w zakupie.ZAPRASZAMY NA PREZENTACJE i DO SKŁADANIA OFERT ZAKUPU !!!*powyższe informacje zostały sporządzone na podstawie oświadczeń i nie są ofertą w rozumieniu przepisów prawa - zalecamy ich osobistą weryfikację.

Kalkulator opłat dodatkowych
Drukuj tę ofertę ze zdjęciami
Drukuj tę ofertę z miniaturkami
Drukuj tę ofertę bez zdjęć
Share |
miejscowość:GOLENIÓW
cena ofertowa PLN:559 000
pow. całkowita [m²]:78,26
cena ofertowa za 1 m2:7 142,86
liczba pokoi:4
rodzaj budynku:NISKI WIELORODZINNY
rok budowy:2 025
piętro:1
ilość pięter:1
forma własności:WŁASNOŚĆ
standard:DO WYKOŃCZENIA
dodatkowe:BALKON
przynależne:OGRÓDEK
ogrzewanie:C.O. GAZOWE
źródło c.w.:PIEC GAZOWY
okna:PCV
Centrum Nieruchomości


edyta@cn.info.pl

Imię i nazwisko
Twój e-mail
Twój telefon
Temat
Treść
Czy jesteś botem?
Wyślij kopię również do mnie