Numer oferty: 439 640

Nowy przestronny dom wolnostojący w zabudowie bliźniaczej położony w Jęczydole gmina Kobylanka, powiat stargardzki w sąsiedztwie lasu o powierzchni całkowitej wraz z kotłownią i garażem 137 m2 i użytkowej 126 m2. Dom znajduje się w połowie drogi między Szczecinem a Stargardem. Bardzo dobry i szybki dojazd drogą szybkiego ruchu zarówno od prawobrzeżnych dzielnic Szczecina (10 minut) jak i Stargardu. Teren ekologicznie czysty. Świeże powietrze i otwarte tereny zielone w pobliżu domu. W sąsiedztwie kilkuletnie przytulne osiedle domów wolno-stojących, gdzieniegdzie urozmaicone zabudową bliźniaczą. Projekt domu bardzo funkcjonalny. Duże charakterystyczne okna zarówno w części parteru. Powierzchnia działki bardzo duża 678 m2. Działka będzie częściowo ogrodzona. Na wjeździe do garażu będzie możliwość parkowania samochodu. Powierzchnia całkowita garażu wynosi 18 m2. Budowa zostanie zakończona w standardzie deweloperskim na wrzesień 2025 roku. Budynek posiadać będzie bardzo dobre parametry termiczne. Okna PCV trzyszybowe. W cenie żaluzje na parterze sterowane elektrycznie. W salonie na parterze możliwość podłączenia kominka. Ocieplenie budynku z zewnątrz styropianem o grubości 20 cm, w połaci dachowej piana PUR (20 cm). Ściany zewnętrzne i wewnętrzne nośne z bloczków z Keramzytu. Ogrzewanie parteru i piętra za pomocą foli grzewczych + instalacja PV na dachu (panele fotowoltaiczne). Dodatkowo na wyposażeniu jest zamontowana jednostka rekuperacji. Drzwi zewnętrzne do budynku antywłamaniowe. Zakończenie stanu deweloperskiego wrzesień 2025. Działka ogrodzona zostanie po zakończeniu inwestycji siatką z trzech stron.

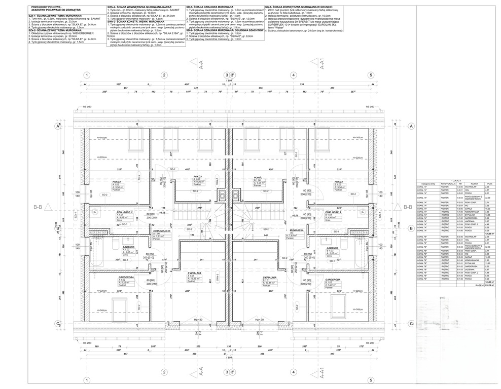
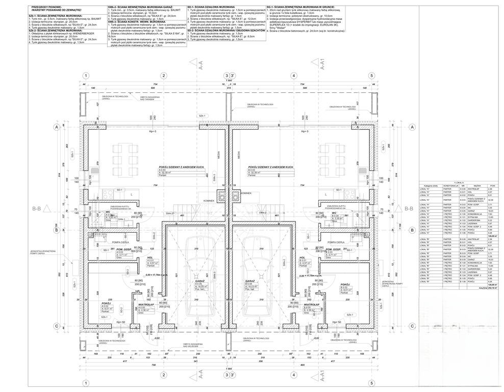
Rozkład pomieszczeń jest następujący:

PARTER: 70,42

1. Wiatrołap 2,36
2. Hall 4,57
3. Salon z aneksem kuchennym 32,39
4. WC- Łazienka 3,35
5. Pomieszczenie gospodarcze 3,71
6. Pokój 8,01
7. Garaż 16,03

PIĘTRO: 55,67

1. Komunikacja 7,63
2. Łazienka 5,67
3 Pomieszczenie gospodarcze 2 4,48
4. Pokój 9,56
5. Pokój 9,26
6. Garderoba 5,22
7. Sypialnia 13,58



W miejscowości Jęczydół znajdują się sklepy, poczta, przystanek autobusowy, kościół, plac zabaw, ścieżki rowerowe i spacerowe. Wygląd budynku jak i jego powierzchnie mogą nieznacznie odbiegać od informacji podanych w powyższym opisie.

Cena w standardzie deweloperskim wynosi 1071000 zł.

Zapraszam do osobistej weryfikacji oferty.*powyższe informacje zostały sporządzone na podstawie oświadczeń i nie są ofertą w rozumieniu przepisów prawa - zalecamy ich osobistą weryfikację.

Kalkulator opłat dodatkowych
Drukuj tę ofertę ze zdjęciami
Drukuj tę ofertę z miniaturkami
Drukuj tę ofertę bez zdjęć
Share |
miejscowość:JĘCZYDÓŁ
typ domu:BLIŹNIACZY
cena ofertowa PLN:957 000
pow. całkowita [m²]:137,15
pow. użytkowa [m²]:126,09
pow. działki [m²]:678
liczba pokoi:4
standard:DO WYKOŃCZENIA
rok budowy:2 025
materiał ścian:BLOCZKI
ogrzewanie:PROMIENNIKI PODCZERWIENI
źródło c.w.:BOJLER
przynależne:GARAŻ, OGRÓDEK, TARAS
Centrum Nieruchomości


edyta@cn.info.pl

Imię i nazwisko
Twój e-mail
Twój telefon
Temat
Treść
Czy jesteś botem?
Wyślij kopię również do mnie