Numer oferty:
437 269


Na sprzedaż nowoczesny, komfortowy bliźniak w stanie deweloperskim blisko szkołyna Mierzynie
Dom oddzielony od sąsiada podwójną ścianą nośną z dylatacją styropianu pomiędzy ( 18+2+18 )
Sprzedaż na podstawie umowy deweloperskiej i rachunku powierniczego.
standard wykończenia:
? ogrzewanie i ciepła woda - indywidualna pompa cieplna powietrzna
? ogrzewanie podłogowe na parterze i piętrze
? system rekuperacji z jednostką
? okna i drzwi tarasowe PCV, 3 szybowe - ciepły montaż na taśmach - profil Salamander
? drzwi na taras w systemie przesuwnym - HS
? na parterze w oknach elektryczne rolety zewnętrzne
? drzwi wejściowe w kolorze antracytowym
? rozprowadzone instalacje: wodno-kanalizacyjna, elektryczna wraz z okablowaniem pod kamery i alarm
? rozprowadzona instalacja internetowa i R-TV.
? schody strychowe drewniane, składane
? sufit poddasza, płyty karton-gips zatarte na łączeniach
?ściany konstrukcyjne murowane, ocieplone styropianem 20 cm.
? elewacja - tynk mineralny barwiony w masie / panele PCV imitujące drewno.
? dachówka ceramiczna płaską, w kolorze antracyt
? rury i rynny PCV w kolorze antracytowym
? tynki wewnętrzne gipsowe
? ujęcie wody zewnętrzne / ogrodowe
? teren wokół budynku wyrównany
? ogrodzenie ogródków z tyłu budynku z paneli systemowych
? dwa miejsca parkingowe - kostka ażurowa / kostka brukowa
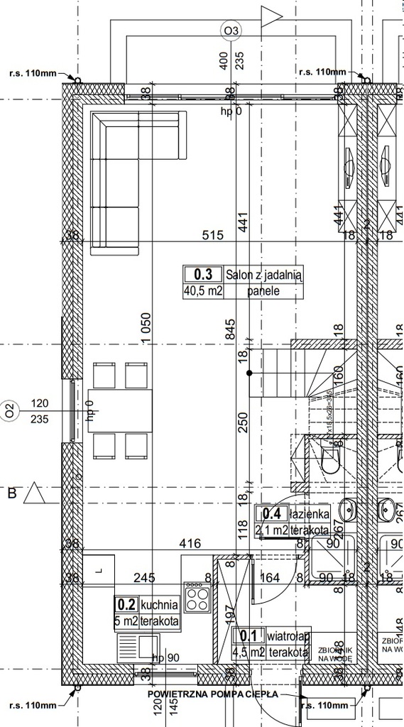
Na powierzchnię 100,6 m2 składają się na parterze :
- salon z jadalnią o pow. 40 m2
- kuchnia o pow 5 m2
- łazienka z toaletą o pow. 2,1 m2
- wiatrołap o pow. 4,5 m2
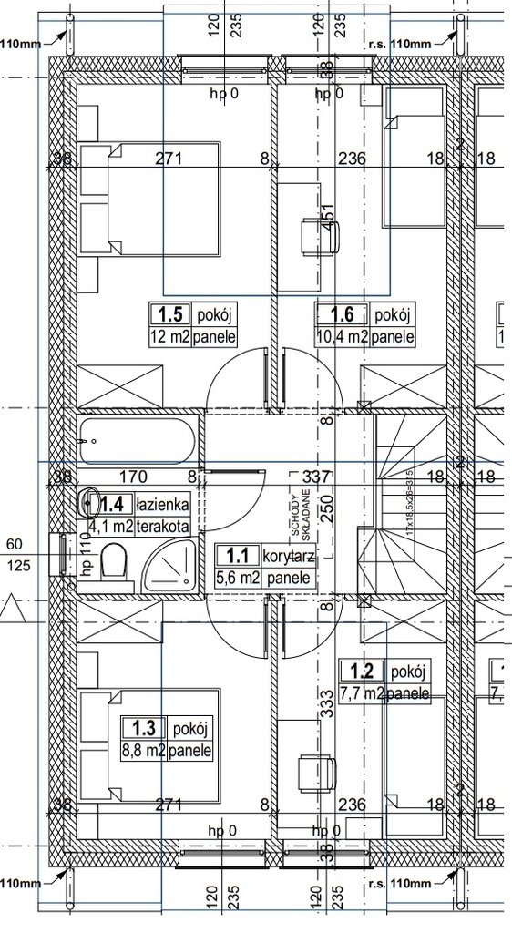
Piętro :
- pokój o pow. 12 m2
- pokój o pow. 10,4 m2
- pokój o pow. 8,8 m2
- pokój o pow. 7,7 m2
-łazienka razem z toaletą o pow, 4,1 m2
- korytarz o pow. 5,6 m2
Kupujący zwolniony z opłaty PCC, 2 % do Urzędu Skarbowego.
Oferta skierowana do najbardziej wymagających Klientów, ceniących wysoki standard wykończenia.
Lokalizacja idealna, blisko szkoły podstawowej i przedszkola, ciche spokojne miejsce .
Wyłączność nie szukaj dalej, zadzwoń i umów się na prezentację.
*powyższe informacje zostały sporządzone na podstawie oświadczeń i nie są ofertą w rozumieniu przepisów prawa - zalecamy ich osobistą weryfikację.
