Numer oferty:
436 046


Na sprzedaż komfortowy dom, położony na działce o powierzchni 4900 m2 z widokiem na Jezioro Nowowarpieńskie.
Nieruchomość zlokalizowana w Nowym Warpnie przy granicy Niemieckiej oraz w niedalekiej odległości od Szczecina (około 35 km).
Dom przeszedł generalny remont. Zachowane zostały belki konstrukcyjne oraz drewno, które w połączeniu z nowoczesnym stylem nadają nieruchomości niesamowity klimat.
Pomieszczenia słoneczne i eleganckie w odcieniach bieli. Na parterze jak i na piętrze położone drewno.
Kuchnia z systemem BLUM, sprzęt AGD.
Z salonu oraz sypialni na parterze wyjście na piękny ogród z drzewami owocowymi.
Na powierzchnię 250 m2 składa się:
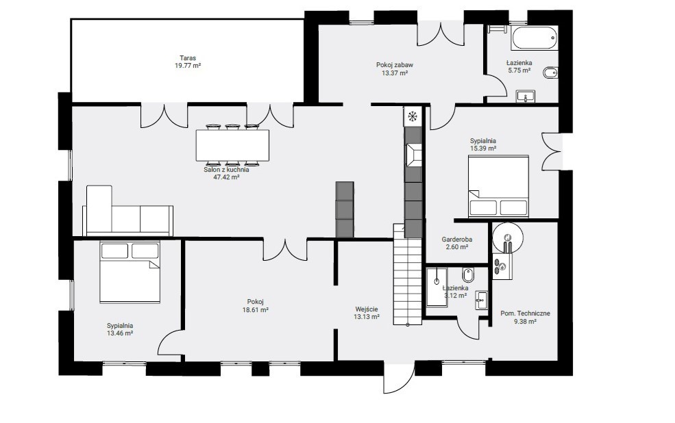
Parter:
* Hol - 13,13 m2
* Salon z aneksem kuchennym z wyjściem na taras (19,77 m2) - 47,42 m2
* 2 sypialnie (jedna garderobą) - 15,39 m2 oraz 13,46 m2
* 2 łazienki (jedna do własnej aranżacji) - 5,75 m2 oraz 3,12 m2
* 2 pokoje - 18,61 m2 oraz 13,37 m2
* Pomieszczenie gospodarcze 9,38 m2
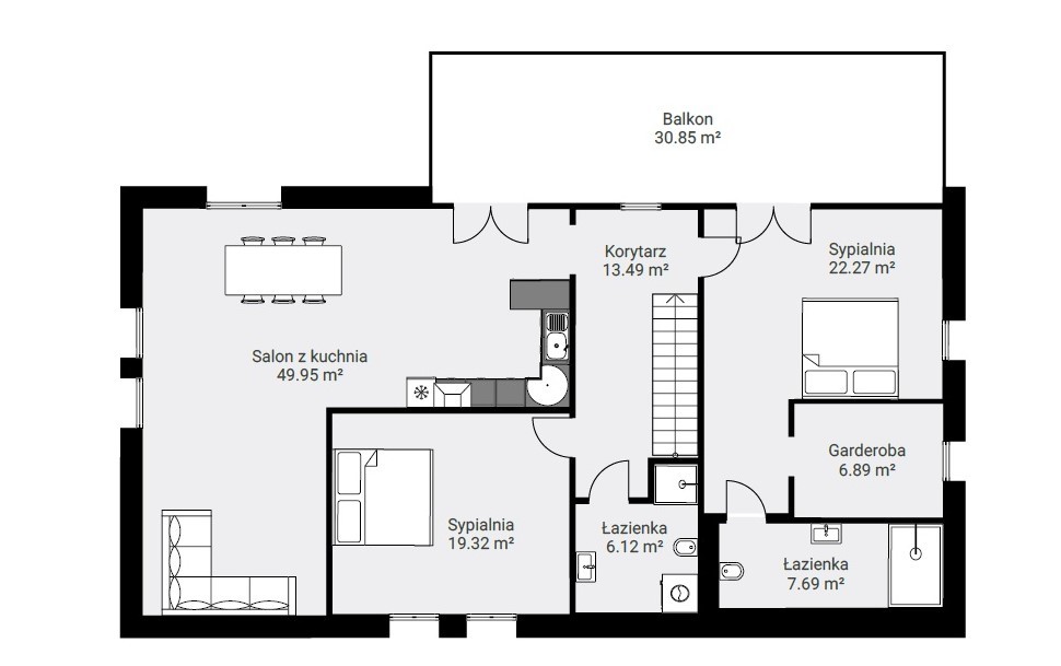
Piętro
* Salon (z możliwością/miejscem na aneks kuchenny) - 49,95 m2
* Sypialnia - 22,27 m2 z garderobą - 6,89 m2 oraz łazienką - 7,96 m2 do własnej aranżacji,
* Sypiania - 19,32 m2,
* Łazienka - 6,12 m2,
* Korytarz - 13,49 m2.
Niebywale urokliwe miejsce oraz dom zaprojektowany z dbałością o każdy szczegół.
Jest idealnym miejscem dla rodzin lub zakup pod inwestycje (możliwość zrobienia dwóch niezależnych mieszkań).
Najważniejsze informacje:
* dom wolnostojący o pow. 250 m2,
* działka 4900 m2 z licznymi drzewami owocowymi,
* możliwość zrobienia dwóch niezależnych mieszkań,
* ogrzewanie pompą ciepłą,
* na parterze ogrzewanie podłogowe,
* nowe okna 3-szybowe,
* nowa elewacja
* wiata na samochód,
Doskonała lokalizacja zapewniające ciszę, spokój.
W pobliżu sklepy, kort tenisowy, plaża oraz marina.
WYŁĄCZNOŚĆ
Zapraszamy.*powyższe informacje zostały sporządzone na podstawie oświadczeń i nie są ofertą w rozumieniu przepisów prawa - zalecamy ich osobistą weryfikację.
