Numer oferty:
422 856


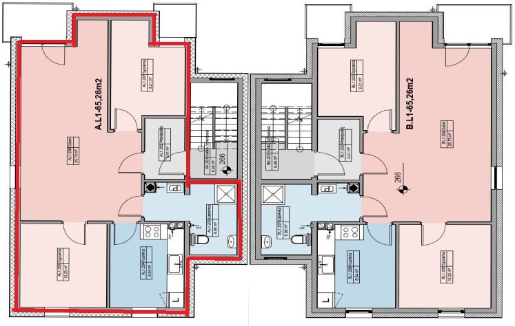
Zapraszamy do zapoznania się NOWĄ ofertą MIESZKAŃ w standardzie DEWELOPERSKIM zlokalizowanych w Policach.Inwestycja obejmuje budynek wielorodzinny 3 - piętrowy z windą, składający się z 45 lokali mieszkalnych oraz 2 mniejsze budynki z 4 lokalami mieszkalnymi. Lokale będą posiadać aneks kuchenny lub oddzielną kuchnię.Na parterze dużego bloku zlokalizowany będzie garaż z miejscami parkingowymi (32 miejsc), natomiast w obrębie osiedla zapewniono 22 miejsca parkingowe "pod chmurką".Udogodnienia inwestycji:- teren przyszłej inwestycji to kameralne w pełni zagospodarowane osiedle,- do wyboru mieszkania o o pow. od ok. 25 m2 do ok. 65 m2,- możliwość wykupienia miejsca postojowego w garażu lub na zewnątrz budynku za dodatkową opłatą.Niniejsza oferta dotyczy mieszkania 3-pokojowego z 2 balkonami położonego na I piętrze budynku mieszkalnego.Lokal mieszkalny o pow. użytkowej 65,26 m2 składa się z następujących pomieszczeń:- przedpokój - pow. 3,41 m2,- salon - pow. 26,79 m2,- kuchnia - pow. 8,64 m2- sypialnia - pow. 10,23 m2,- sypialnia - pow. 9,21 m2,- łazienka - pow. 6,98 m2.Wszystkie lokale mieszkalne wykończone będą w następującym standardzie deweloperskim:- podłoża pod posadzki ? betonowe,- okna PCV bez szprosów 3-szybowe,- parapety zewnętrzne ?stalowe lub PCV,- parapety wewnętrzne ? postforming,- ściany tynk kl. I ? III - bez szpachlowania,- sufity nietynkowane, nieszpachlowane, płyty kanałowe,- w korytarzu, pokojach, łazience- przygotowane podłoże pod posadzki,- biały montaż ?we własnym zakresie,- instalacje elektryczne- okablowanie, gniazda wtykowe i włączniki,- instalacje sanitarne wodno kanalizacyjne (bez białego montażu),- instalacja centralnego ogrzewania z grzejnikami- drzwi wejściowe do mieszkań w cenie lokalu,- drzwi wewnętrzne ? brak,- klatki schodowe ? schody żelbetowe obłożone płytkami, balustrada stalowa, ściany tynkowane i malowane,- ocieplenie konstrukcji dachu wełną mineralną lub pianą PUR wraz z folią.MEDIA:- instalacje- elektryczna, wodna, kanalizacyjna (kompletne),- centralne ogrzewanie, ciepła woda - z kotłowni gazowej,- instalacja TV, telefoniczna, internetowa- orurowanie.Planowany termin zakończenia budowy XII.2025 r.LOKALIZACJA:Nowoczesne osiedle zlokalizowane jest w centrum Polic. Dobrze skomunikowane z centrum miasta i nie tylko. Idealna komunikacja, ośrodki dydaktyczne, służba zdrowia, centra handlowe gwarantują zarówno spokój jak i wygodę mieszkania.W CENIE ZAWARTE JEST 8% VAT, Kupujący zwolniony jest z podatku od czynności cywilnoprawnych u notariusza.ZAPRASZAMY DO KONTAKTU w celu poznania szczegółów, bądź UMÓWIENIA SIĘ NA PREZENTACJE !BEZPŁATNIE POMAGAMY W UZYSKANIU KREDYTU HIPOTECZNEGO NA ZAKUP MIESZKANIA.*powyższe informacje zostały sporządzone na podstawie oświadczeń i nie są ofertą w rozumieniu przepisów prawa - zalecamy ich osobistą weryfikację.
