
Numer oferty: 435 002
Na powierzchnię użytkową składają się :
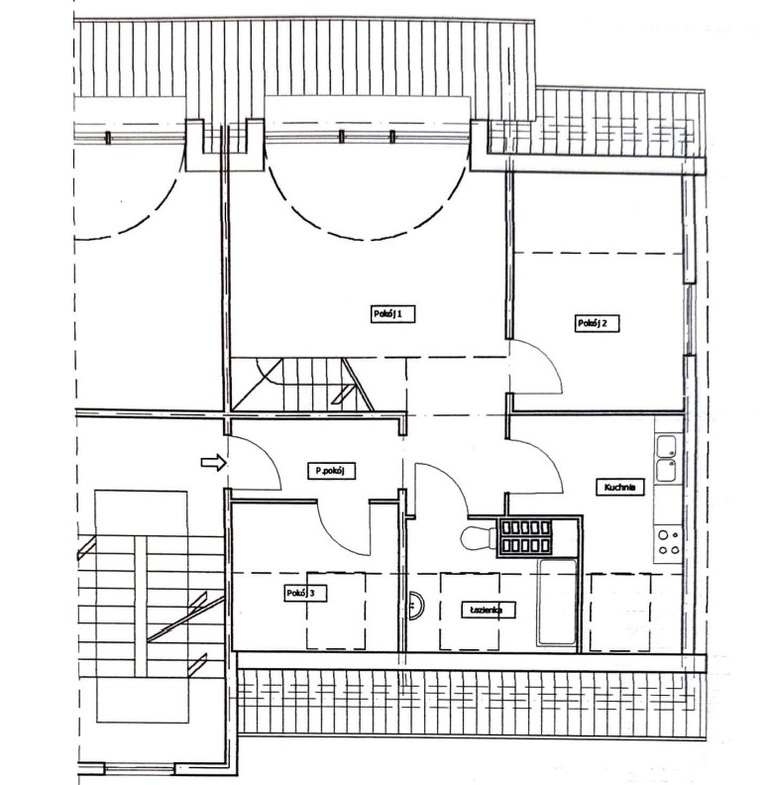
I kondygnacja : (51,6m2 ):
- salon z możliwością zrobienia balkonu
- osobna kuchnia
- pokój dziecka
- sypialnia
-łazienka z toaletą
- korytarz
II kondygnacja - poddasze o pow. 31,5m2 - jeden pokój rekreacyjny .
Budynek murowany, ocieplony styropianem, czysta szeroka klatka schodowa, przy nieruchomości dużo miejsc parkingowych.
Na osiedlu, sklepy : Biedronka, Żabka, Lidl, Apteka, przychodnia, pizzeria, blisko przedszkole,żłobek oraz szkoła podstawowa
Do komunikacji miejskiej, spacerem dojdziemy w 3 minuty - autobus linii 241.
Oferta na wyłączność, nie szukaj dalej,.
Zapraszam na prezentację.
*powyższe informacje zostały sporządzone na podstawie oświadczeń i nie są ofertą w rozumieniu przepisów prawa - zalecamy ich osobistą weryfikację.

Na sprzedaż nowoczesne, mieszkanie dwupoziomowe, położone w niskim budynku z cegły na Przecławiu.
Spółdzielcze własnościowe prawo do lokalu, możliwość kupna dla obywatela z poza Unii Europejskiej.
Za dodatkową opłatąistnieje możliwość kupna garażu o pow. 16,9m2, który znajduje się pod budynkiem.
Do mieszkaniaprzynależy piwnica o pow. 4,41m2
Najważniejsze informacje, oraz standard wykończenia:
- kuchnia robiona na zamówienia, wyposażona w sprzęt AGD: płyta indukcyjna, piekarnik ,mikrofala, zmywarka , lodówka, okap,
- w dwóch pokojach stałe zabudowy szaf oraz w przedpokoju.
- w cenie : w salonie zestaw kina domowego 5 +1 , istnieje możliwość pozostawienia części mebli ruchomych.
- w salonie i sypialni zamontowane jednostki do klimatyzacji, z przygotowaniem do podłączenia na dachujednostki zewnętrznej ( w porozumieniu ze spółdzielnią trzeba nadmurować komin )
- istnieje możliwość wykonania balkonu ( jest zgoda ze spółdzielni )
- ogrzewaniez bezpiecznego, ekonomicznego pieca gazowego
- drzwi wewnętrzne firmy Dre , zewnętrzne antywłamaniowe Gerda
Na powierzchnię użytkową składają się :
I kondygnacja : (51,6m2 ):
- salon z możliwością zrobienia balkonu
- osobna kuchnia
- pokój dziecka
- sypialnia
-łazienka z toaletą
- korytarz
II kondygnacja - poddasze o pow. 31,5m2 - jeden pokój rekreacyjny .
Budynek murowany, ocieplony styropianem, czysta szeroka klatka schodowa, przy nieruchomości dużo miejsc parkingowych.
Na osiedlu, sklepy : Biedronka, Żabka, Lidl, Apteka, przychodnia, pizzeria, blisko przedszkole,żłobek oraz szkoła podstawowa
Do komunikacji miejskiej, spacerem dojdziemy w 3 minuty - autobus linii 241.
Oferta na wyłączność, nie szukaj dalej,.
Zapraszam na prezentację.
*powyższe informacje zostały sporządzone na podstawie oświadczeń i nie są ofertą w rozumieniu przepisów prawa - zalecamy ich osobistą weryfikację.

![]() |
Kalkulator opłat dodatkowych |
![]() |
Drukuj tę ofertę ze zdjęciami |
![]() |
Drukuj tę ofertę z miniaturkami |
![]() |
Drukuj tę ofertę bez zdjęć |

| miejscowość: | PRZECŁAW |
|---|---|
| cena ofertowa PLN: | 699 000 |
| pow. całkowita [m²]: | 83,10 |
| cena ofertowa za 1 m2: | 8 411,55 |
| liczba pokoi: | 4 |
| rodzaj budynku: | NISKI BLOK |
| rok budowy: | 1 998 |
| piętro: | 4 |
| ilość pięter: | 4 |
| forma własności: | SPÓŁDZIELCZE WŁASNOŚCIOWE |
| czynsz dla spółdz./wspólnoty: | 690 |
| standard: | WYSOKI STANDARD |
| przynależne: | PIWNICA, GARAŻ, KOMÓRKA |
| ogrzewanie: | C.O. GAZOWE |
| źródło c.w.: | PIEC GAZOWY |
| okna: | DREWNIANE NOWY TYP, PCV |

| Centrum Nieruchomości |
![]() |
![]() edyta@cn.info.pl |

















