
Numer oferty: 436 436

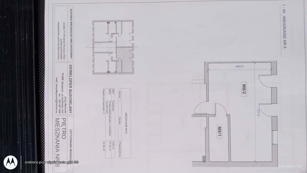
Kawalerka o powierzchni 34 m2I/I w Rurzycy, w stanie developerskim. Blisko las, blisko do S3, niedaleko Kliniska, w budynku z 2009 roku . Budynek jednopiętrowy z użytkowym poddaszem.Wybudowany z bloczków keramzytowych,ocieplony, podgrzewacze wody, maty podłogowe. Ściany i podłogi - wylewka i tynk maszynowy, rozprowadzona instalacja elektryczna , kanalizacyjna, gazowa . Okna PCV trzyszybowe . Teren wokół budynku ogrodzony z miejscami parkingowymi.Cena za m2 9936- zł z VAT 8%. W roku 2026 do budynku podciągnięta będzie instalacja gazowa, na chwilę obecną ogrzewanie elektryczne.*powyższe informacje zostały sporządzone na podstawie oświadczeń i nie są ofertą w rozumieniu przepisów prawa - zalecamy ich osobistą weryfikację.

![]() |
Kalkulator opłat dodatkowych |
![]() |
Drukuj tę ofertę ze zdjęciami |
![]() |
Drukuj tę ofertę z miniaturkami |
![]() |
Drukuj tę ofertę bez zdjęć |

| miejscowość: | RURZYCA |
|---|---|
| cena ofertowa PLN: | 337 824 |
| pow. całkowita [m²]: | 34 |
| cena ofertowa za 1 m2: | 9 936 |
| liczba pokoi: | 1 |
| rodzaj budynku: | NISKI BLOK |
| rok budowy: | 2 009 |
| piętro: | 1 |
| ilość pięter: | 1 |
| forma własności: | WŁASNOŚĆ |
| standard: | DO WYKOŃCZENIA |
| przynależne: | GARAŻ |
| ogrzewanie: | C.O. GAZOWE |
| źródło c.w.: | PIEC GAZOWY |
| okna: | POŁACIOWE, PCV |

| Centrum Nieruchomości |
![]() |
![]() edyta@cn.info.pl |

















