Numer oferty: 411 537

Dom mieszkalny, jednorodzinny w zabudowie bliźniaczej.


Powierzchnia całkowita domu 130,87mkw
Powierzchnia działki 300 m?



Układ pomieszczeń bardzo funkcjonalny.

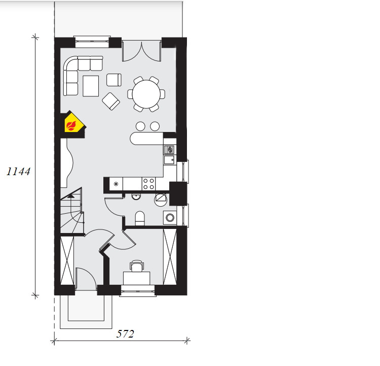
Parter:
-wiatrołap 4,19m2
-hol 5,0 m2
-łazienka 3,82m2
-salon z otwartą kuchnią 28,11m2 ( z wyjściem na taras i ogród)
-schowek 0,92 mkw
- pokój 7,92 mkw

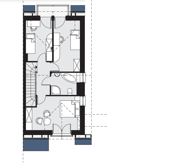
Piętro:
-schody 3,86m2
-hol 5,04m2
-pokój - 13,30m2
-pokój- 14,68m2
-łazienka 4,98m2
-pokój - 9,96m2

Instalacja wodno-kanalizacyjna , gazowa - piec kondennsacyjny dwufunkcyjny , elektryczna , domofonowa , c.o.

Ogrzewanie podłogowe na parterze i łazienka na piętrze , pozostałe pokoje grzejniki.

Strych do własnego wykończenia.

Nieruchomość znajduje się w spokojnej częsci miasta w sąsiedztwie zabudowy jednorodzinnej.
Doskonała lokalizacja inwestycji.  W pobliżu sklepy , szkoła , przedszkole i żłobek , kościół , stacja paliw , myjnia samochodowa ,- droga wyjazdowa s10 .

Podana cena 478 000 dotyczy budynku w stanie surowym zakniętym.

Budynek w stanie deweloperskim -(cena 598 000 ), energooszczędny zbudowany z wysokiej jakości materiałów .
Ściany zewnętrzne - bloczek solbet docieplony styropianem grafitowym i wykończony tynkiem silkatowym , dachówka ceramiczna , okna PCV - pakiet trzyszybowy niskoemisyjny , tynki wewnątrz maszynowe gipsowe , posadzki maszynowe , kominy systemowe (przygotowane do kominka) , schody żelbetowe , poddasze docieplone wełną mineralną , schody strychowe.
Z kostki brukowej wykone wejście do domu , najazdy na samochód , taras .

Dom docieplony, wykończony tynkiem silikatowym, przyłącza tj woda, gaz, prąd, kanaliza wykonane.

Kupujący nie płaci 2% podatku PCC.

Zapraszam na prezentacje :)
*powyższe informacje zostały sporządzone na podstawie oświadczeń i nie są ofertą w rozumieniu przepisów prawa - zalecamy ich osobistą weryfikację.

Kalkulator opłat dodatkowych
Drukuj tę ofertę ze zdjęciami
Drukuj tę ofertę z miniaturkami
Drukuj tę ofertę bez zdjęć
Share |
miejscowość:STARGARD
typ domu:BLIŹNIACZY
cena ofertowa PLN:482 000
pow. całkowita [m²]:130,87
pow. użytkowa [m²]:101,78
pow. działki [m²]:300
liczba pokoi:5
standard:SUROWY ZAMKNIĘTY
rok budowy:2 022
pokrycie dachu:DACHÓWKA CERAMICZNA
materiał ścian:BLOCZKI
ogrzewanie:C.O. GAZOWE
źródło c.w.:PIEC GAZOWY
przynależne:GARAŻ
Centrum Nieruchomości


edyta@cn.info.pl

Imię i nazwisko
Twój e-mail
Twój telefon
Temat
Treść
Czy jesteś botem?
Wyślij kopię również do mnie