Numer oferty:
438 781


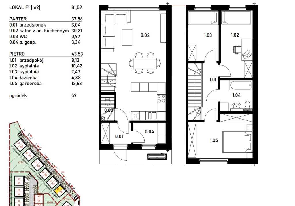
Na sprzedaż nowoczesny bliźniak w stanie deweloperskim, położony na kameralnym i spokojnym osiedlu, w otoczeniu ciszy i zieleni.Dom o funkcjonalnym układzie 4 pokoi, zapewnia wygodę codziennego życia.Na parterze znajduje się przedsionek (3,04m2), pomieszczenie gospodarcze (3,34m2), oddzielne WC (0,97m2), oraz przestronna strefa dzienna, na którą składa się salon z aneksem kuchennym (30,21m2) i wyjściem do ogródka (59m2). Na piętrze natomiast mamy duży przedpokój (8,13m2), trzy sypialnie o wymiarach - 10,42m2, 7,47m2 i 12,63m3, oraz łazienkę (4,88m2).Dodatkowym atutem jest spora powierzchnia strychowa, idealna do przechowywania.Ogród od południowego-zachodu to ogromny plus tego lokalu.Nieruchomość została wyposażona w nowoczesne i energooszczędne rozwiązania:pompę ciepła, rekuperację, oraz ogrzewanie podłogowe w każdym pomieszczeniu.Bezpieczeństwo zapewniają drzwi antywłamaniowe, a możliwość podłączenia światłowodu, gwarantuje szybki internet do pracy i rozrywki.Przed budynkiem znajdują się dwa prywatne miejsca postojowe.To idealna propozycja dla osób ceniących nowoczesny design, komfort oraz spokojne otoczenie z szybkim dostępem do infrastruktury miejskiej.W ofercie posiadamy jeszcze inne - podobne lokale.*powyższe informacje zostały sporządzone na podstawie oświadczeń i nie są ofertą w rozumieniu przepisów prawa - zalecamy ich osobistą weryfikację.
