Numer oferty:
417 720
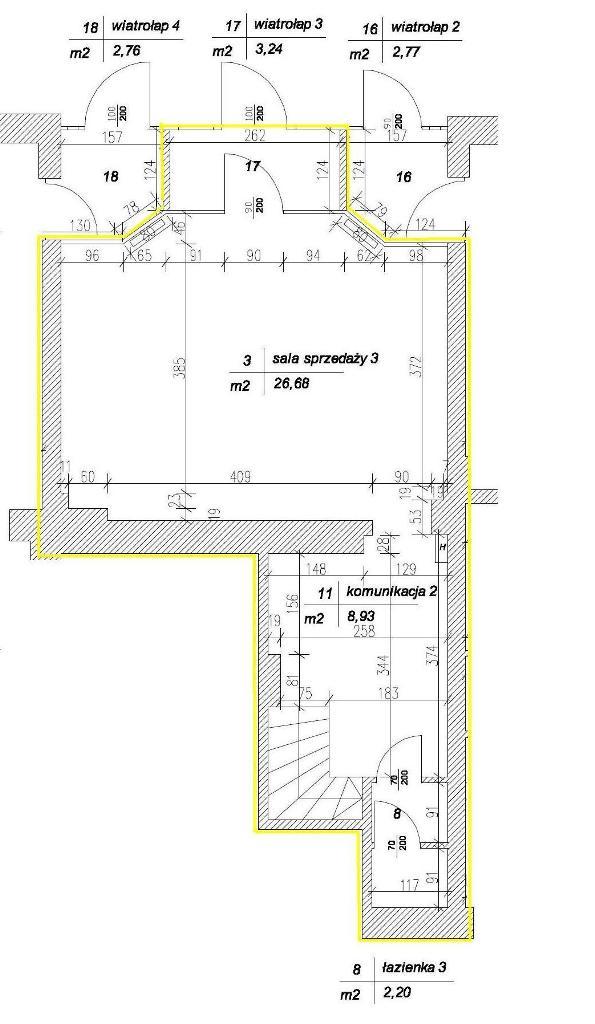
Na sprzedaż lokal w zabudowie ( w ciągu lokali handlowo - usługowych ) zlokalizowany przy bardzo ruchliwej i dobrze skomunikowanej ulicy na Pomorzanach. Oferowana powierzchnia to 42,1 m2, w tym sala sprzedaży, pomieszczenie biurowe/magazyn oraz toaleta. Na podłodze terakota, ściany malowane, w części glazura. Sufit podwieszany z zamontowanym oświetleniem rastrowym. Ogrzewanie i ciepła woda z sieci miejskiej. Lokal posiada nowe, aluminiowe witryny wystawowe. Wejście do lokalu z ulicy, poprzez wiatrołap. Możliwość powieszenia reklamy w obrębie lokalu. Cały budynek jest monitorowany, kamery znajdują się przed lokalem., Duży ruch pieszych, miejsca parkingowe ogólnodostępne. W bezpośredniej bliskości sklep Biedronka, liczne banki i sklepy wielu branż, w pobliżu Tesco i CH MOLO, otoczenie osiedli mieszkaniowych.*powyższe informacje zostały sporządzone na podstawie oświadczeń i nie są ofertą w rozumieniu przepisów prawa - zalecamy ich osobistą weryfikację.