Numer oferty: 430 487

Na sprzedaż lokal użytkowy (87,22 m2) znajdujący się na parterze w budynku z 1992 r. na osiedlu Przyjaźni!
W sąsiedztwie lokale usługowo - handlowe!

W skład powierzchni wchodzi:
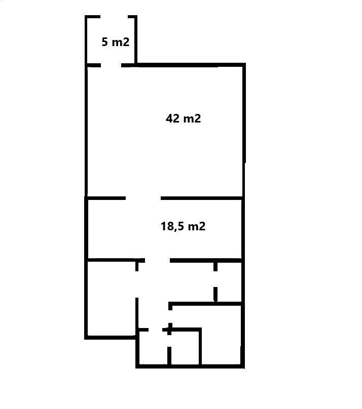
- wiatrołap ok. 5 m2;
- 2 pomieszczenia handlowo- usługowe (ok. 42 m2 oraz 18,5 m2), doświetlone światłem dziennym;
- pomieszczenie magazynowo- biurowe (7 m2, 10 m2 ) z pomieszczeniami technicznymi i pomieszczeniem socjalnym.
Zalety:
Bezpośrednie wejściem z ulicy!
Duża witryna!
Wysokość 3,8 m

Czynsz do zarządcy ok. 1.278,- zł (zawiera: fundusz remontowy, wywóz nieczystości, części wspólne, ogrzewanie), dodatkowe opłaty: prąd zgodnie ze wskazaniami liczników.


Zapraszam na prezentację.




*powyższe informacje zostały sporządzone na podstawie oświadczeń i nie są ofertą w rozumieniu przepisów prawa - zalecamy ich osobistą weryfikację.

Kalkulator opłat dodatkowych
Drukuj tę ofertę ze zdjęciami
Drukuj tę ofertę z miniaturkami
Drukuj tę ofertę bez zdjęć
Share |
miejscowość:SZCZECIN
dzielnica - osiedle:OS. PRZYJAŹNI
cena ofertowa PLN:750 000
rodzaj lokalu użytkowego:HANDLOWO-USŁUGOWY
pow. całkowita [m²]:87,22
standard:WYSOKI STANDARD
forma własności:SPÓŁDZIELCZE WŁASNOŚCIOWE
Centrum Nieruchomości


edyta@cn.info.pl

Imię i nazwisko
Twój e-mail
Twój telefon
Temat
Treść
Czy jesteś botem?
Wyślij kopię również do mnie