
Numer oferty: 438 860
Ogrzewanie i ciepła woda z sieci miejskiej.
Przed budynkiem duża ilość ogólnodostępnych miejsc parkingowych
Świetna lokalizacja, w pobliżu sklepy sklepy: żabka, apteka, restauracje, w odległości 200m zajezdnia autobusowa.
Oferta na wyłączność.
Zapraszam na prezentację*powyższe informacje zostały sporządzone na podstawie oświadczeń i nie są ofertą w rozumieniu przepisów prawa - zalecamy ich osobistą weryfikację.

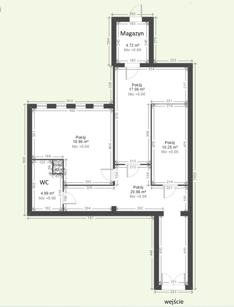
Na sprzedaż lokal handlowo-usługowy usytuowany w środku osiedla Majowego.
Nieruchomość idealna do prowadzenia działalności handlowo-usługowej: gabinety lekarskie, sklepy, hurtownie, biura, szkoła językowa, fryzjer, salon kosmetyczny.
Lokal posiada dwa wejścia, możliwość rozładunku towarów od zaplecza
Ściany wewnętrzne są działowe, więc można dopasować układ i wielkość pomieszczeń pod preferencje nowego Właściciela.
Na powierzchnię 89m2 obecnie składają się:
- pomieszczenie biurowe o pow. 19m2
- pomieszczenie biurowe o pow. 17,6m2 z przejściem do magazynu o pow. 4,7 m2 ( drugie wejście )
- pomieszczenie biurowe o pow. 10m2
- korytarz z aneksem kuchennym
- toaleta
- holl / poczekalnia
Ogrzewanie i ciepła woda z sieci miejskiej.
Przed budynkiem duża ilość ogólnodostępnych miejsc parkingowych
Świetna lokalizacja, w pobliżu sklepy sklepy: żabka, apteka, restauracje, w odległości 200m zajezdnia autobusowa.
Oferta na wyłączność.
Zapraszam na prezentację*powyższe informacje zostały sporządzone na podstawie oświadczeń i nie są ofertą w rozumieniu przepisów prawa - zalecamy ich osobistą weryfikację.

![]() |
Kalkulator opłat dodatkowych |
![]() |
Drukuj tę ofertę ze zdjęciami |
![]() |
Drukuj tę ofertę z miniaturkami |
![]() |
Drukuj tę ofertę bez zdjęć |

| miejscowość: | SZCZECIN |
|---|---|
| dzielnica - osiedle: | OS. MAJOWE |
| cena ofertowa PLN: | 720 000 |
| rodzaj lokalu użytkowego: | HANDLOWO-USŁUGOWY |
| pow. całkowita [m²]: | 89 |
| dodatkowe: | WITRYNA WYSTAWOWA |
| forma własności: | WŁASNOŚĆ |

| Centrum Nieruchomości |
![]() |
![]() edyta@cn.info.pl |

















