Numer oferty: 425 749

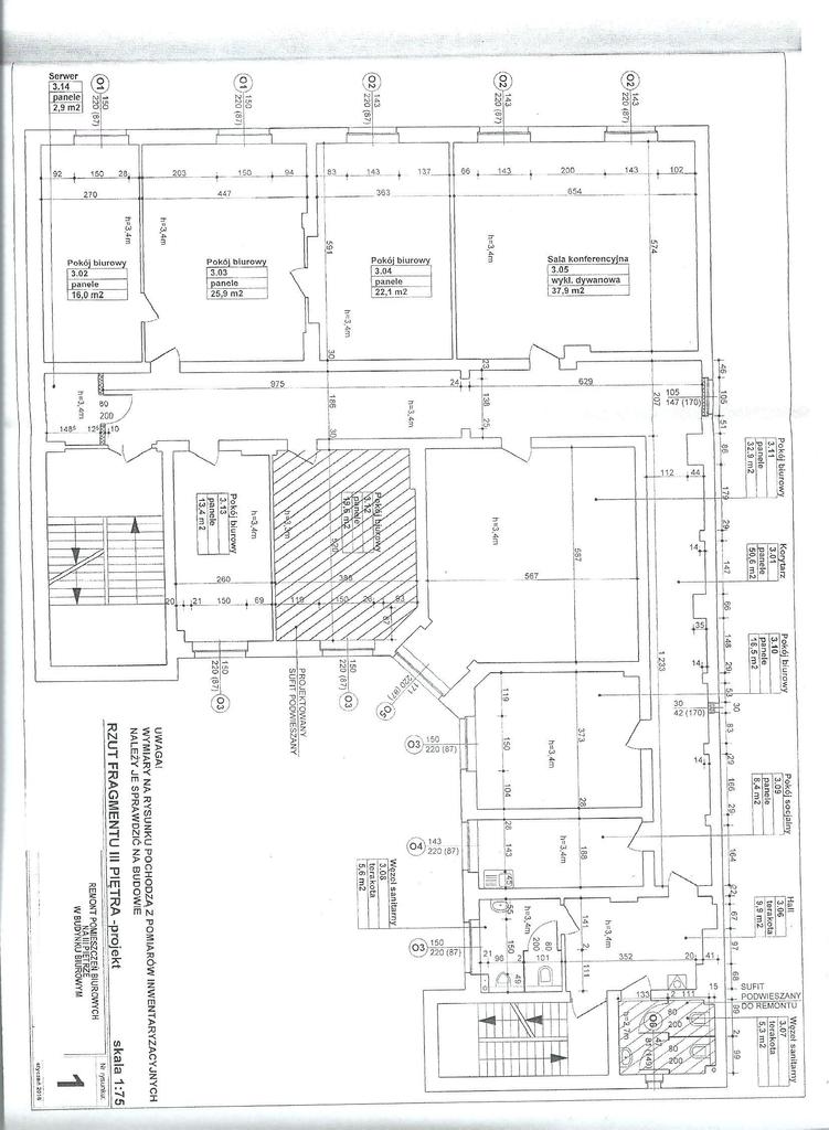
Pomieszczenia biurowe- wynajemcałe piętro w centrum Szczecina w pobliżu Posejdona i Bramy Portowejcałe piętro 268m2 w kamienicy plus piwnica 40,23 m2 (kamienica czysta zadbana - po remoncie klatki i elewacjiNa powierzchnię biurową 268,3 m2 składają się : 8 pokoi od 13 do 32 m2sala konferencyjna 37,9 m2, serwerownia , pomieszczenia socjalne i węzeł sanitarny i serwerownia.cena netto dodatkowo czynsz do zarządcy ok 949 zł (cz. wspólne i zaliczka na wodę, śmieci )oraz media (woda i prąd, internet (światłowód), ogrzewanie gazowe)dostępne 2 miejsca postojowe na podwórku kamienicydostępny światłowódObecnie pomieszczenia są bez mebli.*powyższe informacje zostały sporządzone na podstawie oświadczeń i nie są ofertą w rozumieniu przepisów prawa - zalecamy ich osobistą weryfikację.

Kalkulator opłat dodatkowych
Drukuj tę ofertę ze zdjęciami
Drukuj tę ofertę z miniaturkami
Drukuj tę ofertę bez zdjęć
Share |
miejscowość:SZCZECIN
dzielnica - osiedle:CENTRUM
czynsz ofertowy PLN:8 500
rodzaj lokalu użytkowego:BIUROWY
pow. całkowita [m²]:268
piętro:3
forma własności:WŁASNOŚĆ
Centrum Nieruchomości


edyta@cn.info.pl

Imię i nazwisko
Twój e-mail
Twój telefon
Temat
Treść
Czy jesteś botem?
Wyślij kopię również do mnie