Numer oferty: 430 895

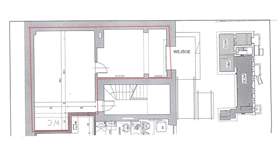
Do wynajęcia lokal o charakterze usługowym zlokalizowany w Centrum Szczecina. Powierzchnia 52,5 m2, składa się z dwóch pomieszczeń i WC. Ogrzewanie z lokalnej kotłowni. Opłaty dodatkowe to prąd, woda i odprowadzenie ścieków (osobny licznik, płatność wg zużycia). Opłata za centralne ogrzewanie zawarta jest w cenie najmu. Lokal nie posiada witryn, światło dzienne dociera tylko przez drzwi wejściowe. Możliwość prowadzenia w lokalu działalności biurowej, usługowej, medycznej lub innej. Bardzo dobry dojazd komunikacją miejską (autobusy i tramwaje), miejsca parkingowe ogólnodostępne. Bardzo duży przepływ pieszych oraz samochodów. Możliwość umieszczenia reklamy na elewacji budynku. Lokalizacja bardzo łatwa do określenia dla Klientów.*powyższe informacje zostały sporządzone na podstawie oświadczeń i nie są ofertą w rozumieniu przepisów prawa - zalecamy ich osobistą weryfikację.

Kalkulator opłat dodatkowych
Drukuj tę ofertę ze zdjęciami
Drukuj tę ofertę z miniaturkami
Drukuj tę ofertę bez zdjęć
Share |
miejscowość:SZCZECIN
dzielnica - osiedle:CENTRUM
czynsz ofertowy PLN:4 410
rodzaj lokalu użytkowego:INNY
pow. całkowita [m²]:52,50
forma własności:WŁASNOŚĆ
Centrum Nieruchomości


edyta@cn.info.pl

Imię i nazwisko
Twój e-mail
Twój telefon
Temat
Treść
Czy jesteś botem?
Wyślij kopię również do mnie