Numer oferty: 439 790

Na wynajem lokal mieszczący się na III piętrze w biurowcu znajdującym się przy pętli Pomorzany.
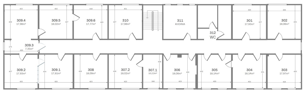
Biuro o powierzchni 96,79 m2, składające się z 5 klimatyzowanych pokoi.

Biura są po remoncie - gotowe do wynajęcia, na podłogach ułożono panele a ściany zostały odmalowane.
Na każdym piętrze znajduje się WC oraz pomieszczenie socjalne dostępne dla najemców.

Czynsz najmu wynosi od 46zł/m? + VAT. (w czynszu wliczone są opłaty za: wodę, ogrzewanie, śmieci). Dodatkowo płatny jest prąd według zużycia oraz Internet - 50 zł/mc (w budynku światłowód Orange).

Dla najemców dostępne są miejsca parkingowe na terenie obiektu w cenie 150 zł/mc za miejsce postojowe.

W budynku dostępne są biura o zróżnicowanych powierzchniach od 10 m2 do ok. 300 m2 (całe piętro). Istnieje możliwość aranżacji pomieszczeń według własnych potrzeb. Biura są przeznaczone do prowadzenia działalności biurowej oraz usługowej.

Zapraszam do kontaktu i na prezentację.

*powyższe informacje zostały sporządzone na podstawie oświadczeń i nie są ofertą w rozumieniu przepisów prawa - zalecamy ich osobistą weryfikację.

Kalkulator opłat dodatkowych
Drukuj tę ofertę ze zdjęciami
Drukuj tę ofertę z miniaturkami
Drukuj tę ofertę bez zdjęć
Share |
miejscowość:SZCZECIN
dzielnica - osiedle:POMORZANY
czynsz ofertowy PLN:3 871,60
rodzaj lokalu użytkowego:BIUROWY
pow. całkowita [m²]:96,79
piętro:3
forma własności:WŁASNOŚĆ
Centrum Nieruchomości


edyta@cn.info.pl

Imię i nazwisko
Twój e-mail
Twój telefon
Temat
Treść
Czy jesteś botem?
Wyślij kopię również do mnie