Numer oferty:
434 430


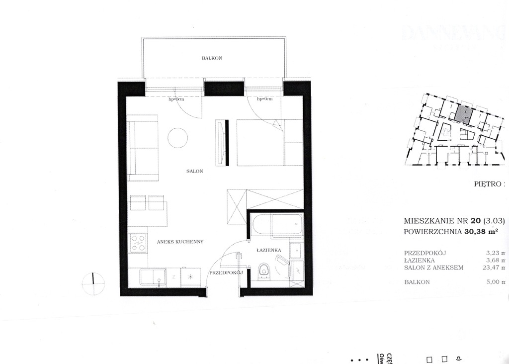
W nowej inwestycji, w której zastosowano nowoczesne rozwiązania i nowoczesny design w centrum Szczecina.OPIS MIESZKANIA: mieszkanie 1 pokojowe o powierzchni 30,38 m2, z wyjściem na balkon o powierzchni 5 m2. Pokój z aneksem kuchennym o powierzchni 23,47 m2, łazienka 3,68 m2, przedpokój 3,23 m2. Balkon od strony północnej o powierzchni 5 m2. II piętro w V piętrowym budynku z windą. Wystawa okien północno - wschodnia.W mieszkaniu klimatyzacja, sterowanie ogrzewaniem za pomocą aplikacji, komfortowe maty grzewcze w łazienkach, system kontaktronów w oknach wyłączających ogrzewanie, hotelowy wyłącznik światła, już nie ma konieczności sprawdzania każdego pomieszczenia, jednym ruchem wyłączają się wszystkie lampy w mieszkaniu. Ponadto system Kontaktronów w oknach wyłączających ogrzewanie w przypadku otwarcia okna, okna trójszybowe. Ogrzewanie i ciepła woda z Szczecińskiej Energetyki Cieplnej (SEC). W budynku nie ma gazu. Niski czynsz.Przewidywany czas udostępnienia mieszkania grudzień 2025 roku.Miejsce postojowe w garażu podziemnym w cenie 90.000 zł.OPIS BUDYNKU: budynek wybudowany z bloczków silikatowych.*powyższe informacje zostały sporządzone na podstawie oświadczeń i nie są ofertą w rozumieniu przepisów prawa - zalecamy ich osobistą weryfikację.
