Numer oferty:
436 483
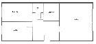
Na sprzedaż mieszkanie 2 pokojowe, bardzo atrakcyjnie położone, lokalizacja cicha, spokojna, wokół dużo zieleni. W pobliżu liczne obiekty użyteczności publicznej, blisko do komunikacji miejskiej, szkoły.Na powierzchnię: 42,2 m2 składają się:- salon ok. 16 m2- sypialnia o powierzchni ok. 7,5 m2- oddzielna kuchnia ok. 7,5 m2 (dostosowane 2 przyłącza: na gaz lub indukcję)- łazienka z prysznicem ok. 5 m2 (wc osobno)- przedpokój ok. 6 m2Mieszkanie słoneczne i ciepłe o funkcjonalnym układzie wnętrz. Dobry standard wykończenia, ściany gładkie, na podłodze panele, w kuchni terakota, okna pcv.Czynsz administracyjny ok. 600zł (2 osoby).Do lokalu przynależy piwnica ok. 3 m2.Polecam z uwagi na lokalizację, atrakcyjne 2 piętro oraz łatwo dostępne miejsca parkingowe. Mieszkanie gotowe do zamieszkania.Zapraszam na prezentację.*powyższe informacje zostały sporządzone na podstawie oświadczeń i nie są ofertą w rozumieniu przepisów prawa - zalecamy ich osobistą weryfikację.