Numer oferty:
437 761


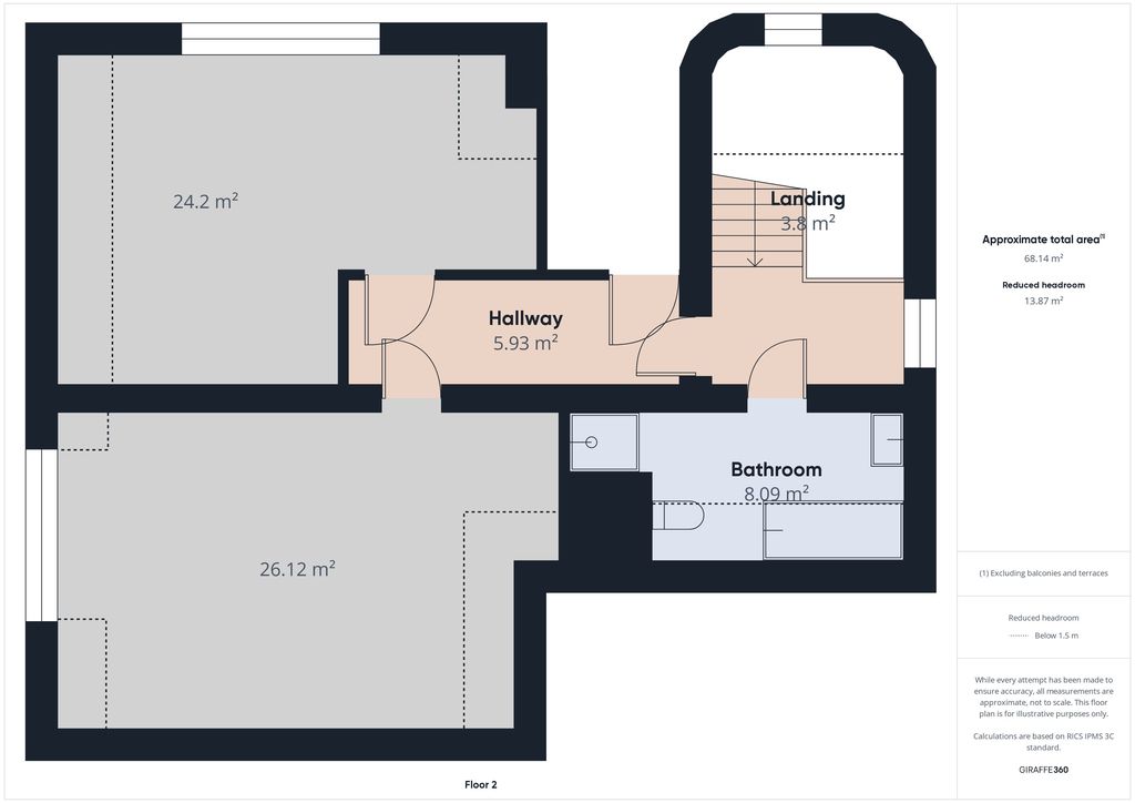
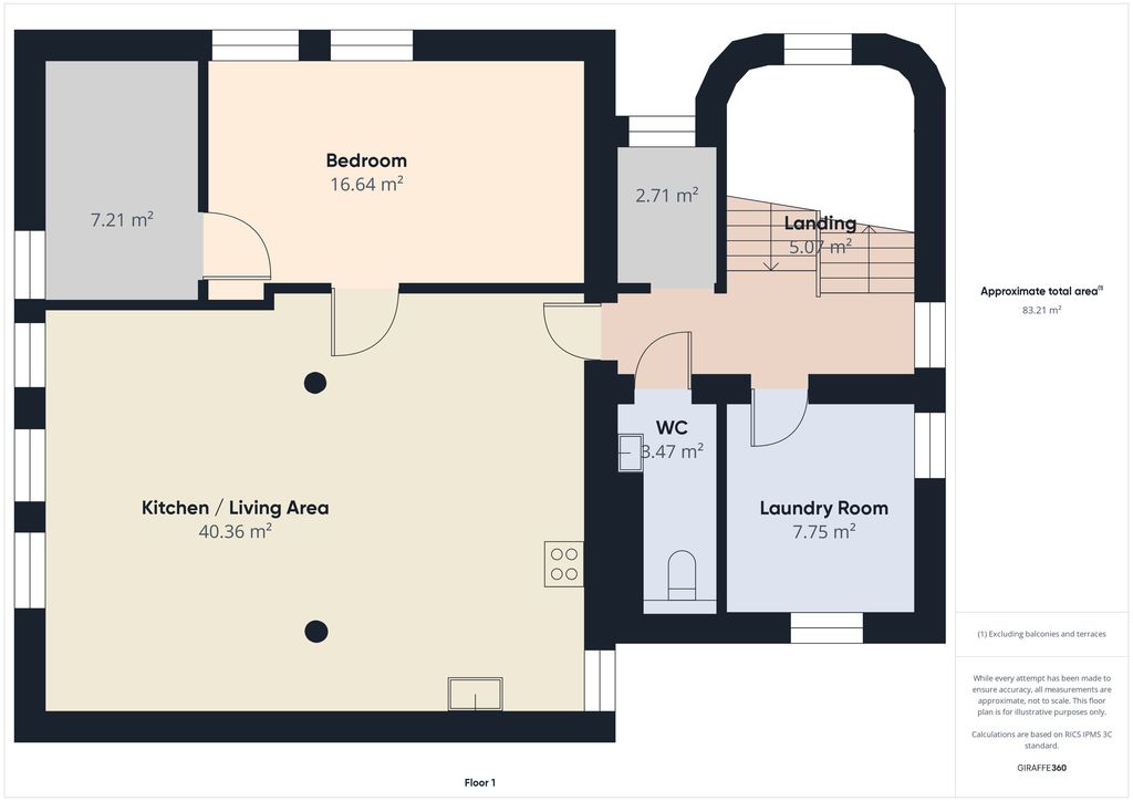
Dwupoziomowe mieszkanie z potencjałem ? idealne dla rodzinyMieszkanie położone jest w spokojnej części Pogodna, przy ul. Romualda Traugutta w Szczecinie.To przestronny, dwupoziomowy lokal w zabudowie szeregowej, oferujący łącznie 155,30 m? powierzchni użytkowej.Układ oraz charakter nieruchomości sprawiają, że to doskonała propozycja dla rodzin poszukujących dużego, funkcjonalnego mieszkania w kameralnym otoczeniu.Układ i funkcjonalnośćMieszkanie zajmuje pierwsze piętro oraz poddasze budynku. Pomieszczenia są jasne, a układ pozwala na wyraźny podział na część dzienną i prywatną.Wnętrze wymaga remontu, co daje możliwość pełnej personalizacji i stworzenia aranżacji dopasowanej do własnych potrzeb.Poziom pierwszy:salon z aneksem kuchennym o powierzchni ok. 40 m?,sypialnia,toaleta,pomieszczenie gospodarcze / pralnia,balkon z widokiem na zieleń.Poziom drugi:dwa duże pokoje,łazienka z wanną i prysznicem,korytarz i komunikacja.Przestrzeń jest bardzo dobrze doświetlona dzięki dużym przeszkleniom i ekspozycji na kilka stron świata.Rozkład pomieszczeń sprzyja wygodzie codziennego życia i zapewnia każdemu domownikowi poczucie prywatności.LokalizacjaUlica Romualda Traugutta to spokojna, zielona część Pogodna? jednej z najbardziej cenionych dzielnic Szczecina.Okolica jest kameralna, a jednocześnie dobrze skomunikowana z centrum miasta.W zasięgu spaceru znajdują się:sklepy i punkty usługowe (Żabka, paczkomat),szkoły i przedszkola,przystanki komunikacji miejskiej,tereny spacerowe i place zabaw.Połączenie spokoju i pełnej infrastruktury sprawia, że lokalizacja ta doskonale odpowiada potrzebom rodzin.Dodatkowe informacjePowierzchnia całkowita: 155,30 m? (zgodnie z księgą wieczystą),Ogrzewanie: gazowe (piec dwufunkcyjny),Forma własności: pełna własność,Budynek: zabudowa szeregowa,Otoczenie: spokojne i zadbane.PodsumowanieTo mieszkanie stanowi doskonałą propozycję dla rodziny, która szuka przestrzeni i funkcjonalnego układu w dobrej lokalizacji.Dwupoziomowy charakter, możliwość własnej aranżacji oraz położenie w sercu Pogodna to atuty, które sprawiają, że nieruchomość ma duży potencjał zarówno do zamieszkania, jak i jako inwestycja długoterminowa.*powyższe informacje zostały sporządzone na podstawie oświadczeń i nie są ofertą w rozumieniu przepisów prawa - zalecamy ich osobistą weryfikację.
