Numer oferty: 438 369

Mieszkanie 2-pokojowe w spokojnym centrum Szczecina, położone na parterze przedwojennej kamienicy z końca XIX w.
Budynek to otwarta oficyna położona w cichym miejscu.
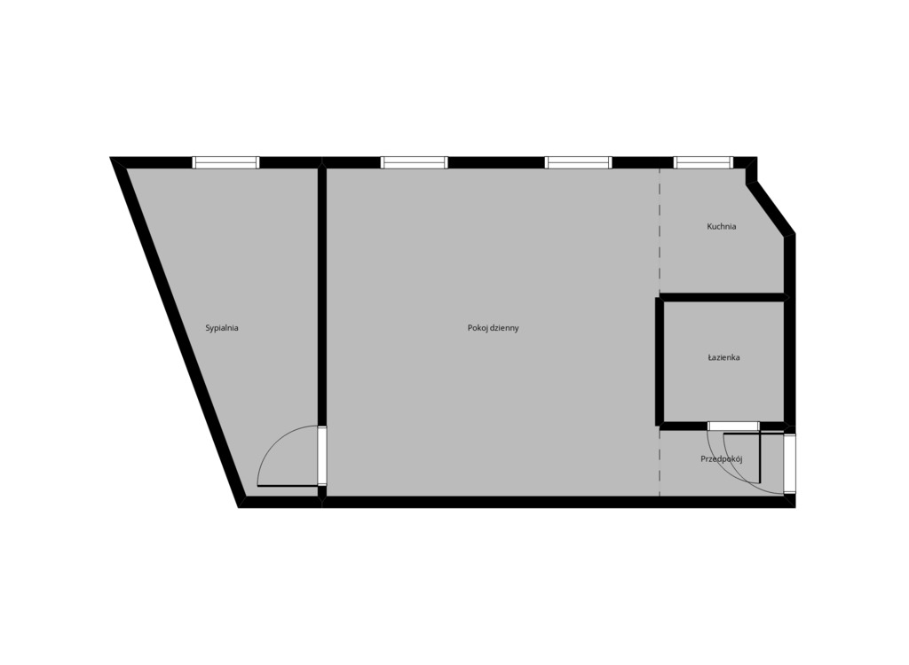
Lokal składa się z z pokoju ok. 17m, z którego jest przejscie do sypialni ok. 7m kw, wejście do kuchni z oknem. Z przedpokoju jest wejście do łazienki z kabiną prysznicową.
ATUTY MIESZKANIA:

  • niewielka powierzchnia, idealna dla 1-2 osób
  • standard do zamieszkania lub do lekkich prac remontowych, zależnie od preferencji Nabywcy
  • przytulne kolory
  • stała zabudowa, meble kuchenne zostają w cenie.
ATUTY LOKALIZACJI:
  • bliskość ryneczku, sklepów, przystanków tramwajowych i autobusowych
  • niedaleko do Parku Kasprowicza, ścieżek rowerowych, obiektów rekreacyjnych.
Mieszkanie ogrzewane jest grzejnikami elektrycznymi, ciepła woda z bojlera elektrycznego.

Comiesięczne opłaty do zarządcy nieruchomości wynoszą obecnie 459 zł przy jednej osobie. Dochodzi opłata za prąd - średnio 500-600 zł miesięcznie (latem mniej, zimą więcej).


Mieszkanie może być atrakcyjną propozycją dla inwestorów, osób szukających pierwszego mieszkania lub osób ceniących sobie starą przedwojenną zabudowę śrómiejską.
Termin wydania mieszkania: najchętniej VI-VII 2026r, do uzgodnienia.


Zapraszam - oferta na wyłączność.


*powyższe informacje zostały sporządzone na podstawie oświadczeń i nie są ofertą w rozumieniu przepisów prawa - zalecamy ich osobistą weryfikację.

Kalkulator opłat dodatkowych
Drukuj tę ofertę ze zdjęciami
Drukuj tę ofertę z miniaturkami
Drukuj tę ofertę bez zdjęć
Share |
miejscowość:SZCZECIN
dzielnica - osiedle:CENTRUM
cena ofertowa PLN:329 000
pow. całkowita [m²]:33,20
cena ofertowa za 1 m2:9 909,64
liczba pokoi:2
rodzaj budynku:KAMIENICA
rok budowy:1 891
ilość pięter:3
forma własności:WŁASNOŚĆ
czynsz dla spółdz./wspólnoty:479
standard:DO REMONTU
przynależne:PIWNICA, KOMÓRKA
ogrzewanie:C.O. ELEKTRYCZNE
okna:PCV
Centrum Nieruchomości


edyta@cn.info.pl

Imię i nazwisko
Twój e-mail
Twój telefon
Temat
Treść
Czy jesteś botem?
Wyślij kopię również do mnie