Numer oferty:
438 566


Planujesz skredytować to marzenie ? zadzwoń.
4 pokojowe rozkładowe mieszkanie z ekspozycja na dwie strony świata /wschód od strony trzech sypialni, zachód od strony salonu i kuchni/ zlokalizowane na PARTERZE niskiego bloku z lat 80-tych.
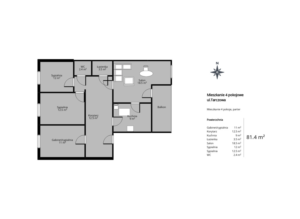
Na powierzchnię 81,4m2 składają się:
Salon ok.18,5m2
3 sypialnie (12m2, 12,5m2, 11m2)
Kuchnia z 2 wejściami (ok.9m2)
Łazienka 3,5m2
WC 2,4m2
Korytarz 12,5m2
Przestrzeń świetnie zaprojektowana i podzielona na strefę dzienną i nocną-sypialnie zlokalizowane po jednej stronie mieszkania a część dzienna to salon z wyjściem na balkon i przejściem do kuchni oraz kuchnia z oknami wychodzącymi na balkon i dodatkowym niezależnym wejściem z korytarza.
Mieszkanie zostało wyremontowane około 2022 roku. Wymieniono drzwi, okna, wyremontowano łazienkę i toaletę.
Do mieszkania przynależy duża, 4,5 metrowa piwnica.
FORMA WŁASNOŚCI: pełna własność z KW
OPŁATY: czynsz z zaliczkami na FR, ogrzewanie, gaz ryczałt: 930 zł przy 1 osobie
*powyższe informacje zostały sporządzone na podstawie oświadczeń i nie są ofertą w rozumieniu przepisów prawa - zalecamy ich osobistą weryfikację.
