
Numer oferty: 438 975
Układ został zmodyfikowany pod wynajem (ścianki działowe ? bez ingerencji w konstrukcję).
Istnieje możliwość łatwego przywrócenia pierwotnego rozkładu: 5 pokoI + 1 łazienka + kuchnia.
Mieszkanie wymaga remontu, co daje pełną swobodę aranżacji oraz możliwość dostosowania przestrzeni do własnych potrzeb lub założeń inwestycyjnych.
STRYCH ? 128 m? (bezpośrednio nad mieszkaniem) Największy atut nieruchomości:
DOCHODOWOŚĆ
Obecnie wszystkie pokoje są wynajmowane.
BUDYNEK
LOKALIZACJA
Ścisłe centrum miasta Róg ul. Księcia Bogusława X i Małkowskiego ? pełna infrastruktura w zasięgu kilku minut:
KOSZTY
DLA KOGO?
Zdjęcia przedstawiają stan rzeczywisty mieszkania oraz wizualizacje wybranych pomieszczeń i strychu (wraz z rzutami).
Nieruchomość łączy lokalizację, metraż oraz realny potencjał wzrostu wartości ? to rzadko spotykana oferta w centrum Szczecina.
*powyższe informacje zostały sporządzone na podstawie oświadczeń i nie są ofertą w rozumieniu przepisów prawa - zalecamy ich osobistą weryfikację.

Kamienica | Róg ul. Księcia Bogusława X i Małkowskiego | Duży potencjał inwestycyjny
Na sprzedaż przestronne mieszkanie do remontu z unikalną możliwością rozbudowy o strych ? położone w ścisłym centrum Szczecina. Nieruchomość idealna pod inwestycję, najem, projekt deweloperski lub przestronny apartament dwupoziomowy.
Stan prawny jest w trakcie regulacji, co docelowo umożliwi zakup również klientowi kredytowemu.
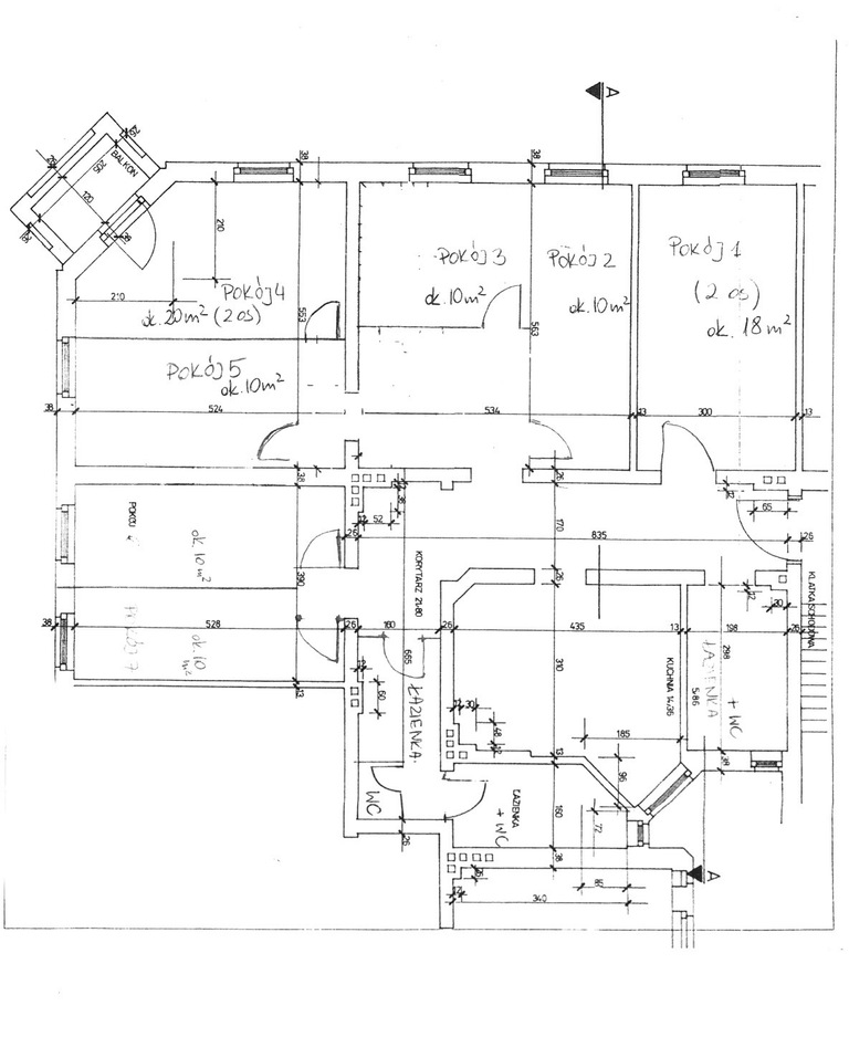
MIESZKANIE ? 145,82 m? Obecny układ:
- 7 pokoi (2x 20m?, 5x 10m?)
- 2 łazienki
- kuchnia z jadalnią
- balkon z widokiem na ul. Księcia Bogusława
Układ został zmodyfikowany pod wynajem (ścianki działowe ? bez ingerencji w konstrukcję).
Istnieje możliwość łatwego przywrócenia pierwotnego rozkładu: 5 pokoI + 1 łazienka + kuchnia.
- podłogi stabilne
- duże możliwości aranżacyjne
- wysokie sufity charakterystyczne dla kamienic
Mieszkanie wymaga remontu, co daje pełną swobodę aranżacji oraz możliwość dostosowania przestrzeni do własnych potrzeb lub założeń inwestycyjnych.
STRYCH ? 128 m? (bezpośrednio nad mieszkaniem) Największy atut nieruchomości:
- strych dostępny wyłącznie z tego lokalu
- możliwość wykupu od wspólnoty (ok. 1 500 zł/m?)
- powierzchnia całkowita: 128 m?
- powierzchnia użytkowa: ok. 98 m?
- najwyższy punkt: 2,55 m
- plastikowe okna
- stworzenia apartamentu dwupoziomowego
- wydzielenia drugiego, niezależnego lokalu
- realizacji projektu inwestycyjnego pod wynajem
DOCHODOWOŚĆ
Obecnie wszystkie pokoje są wynajmowane.
- przychód miesięczny: 7 350 zł
- przychód roczny: ok. 88 200 zł
- ROI brutto: ok. 10%
- przejęcia najemców
- wypowiedzenia umów (miesięczny okres wypowiedzenia)
BUDYNEK
- kamienica z XX wieku
- odnowiona elewacja
- wyremontowana klatka schodowa
- kameralny ogród dla mieszkańców
LOKALIZACJA
Ścisłe centrum miasta Róg ul. Księcia Bogusława X i Małkowskiego ? pełna infrastruktura w zasięgu kilku minut:
- komunikacja miejska (Plac Kościuszki)
- uczelnie (Uniwerystet Szczeciński, PUM)
- restauracje i kawiarnie (Deptak Bogusława)
- sklepy i punkty usługowe (Galeria Kaskada, Dom handlowy Kupiec)
KOSZTY
- czynsz administracyjny: 1 280 zł/mies.
(woda, ścieki, fundusz remontowy, wywóz śmieci) - ogrzewanie i ciepła woda: piec gazowy dwufunkcyjny
koszt gazu w okresie zimowym: ok. 1 070 zł/mies.
DLA KOGO?
- inwestor szukający gotowego cashflow
- deweloper planujący projekt rozbudowy
- osoba marząca o dużym apartamencie w centrum
- klient chcący stworzyć nieruchomość premium z ponadprzeciętnym metrażem
Zdjęcia przedstawiają stan rzeczywisty mieszkania oraz wizualizacje wybranych pomieszczeń i strychu (wraz z rzutami).
Nieruchomość łączy lokalizację, metraż oraz realny potencjał wzrostu wartości ? to rzadko spotykana oferta w centrum Szczecina.
*powyższe informacje zostały sporządzone na podstawie oświadczeń i nie są ofertą w rozumieniu przepisów prawa - zalecamy ich osobistą weryfikację.

![]() |
Kalkulator opłat dodatkowych |
![]() |
Drukuj tę ofertę ze zdjęciami |
![]() |
Drukuj tę ofertę z miniaturkami |
![]() |
Drukuj tę ofertę bez zdjęć |

| miejscowość: | SZCZECIN |
|---|---|
| dzielnica - osiedle: | CENTRUM |
| cena ofertowa PLN: | 859 125 |
| pow. całkowita [m²]: | 145,82 |
| cena ofertowa za 1 m2: | 5 891,68 |
| liczba pokoi: | 7 |
| rodzaj budynku: | KAMIENICA |
| rok budowy: | 1 930 |
| piętro: | 3 |
| ilość pięter: | 4 |
| forma własności: | WŁASNOŚĆ |
| czynsz dla spółdz./wspólnoty: | 1 280 |
| standard: | DO REMONTU |
| dodatkowe: | BALKON |
| przynależne: | OGRÓDEK |
| ogrzewanie: | C.O. GAZOWE |
| źródło c.w.: | PIEC GAZOWY |

| Centrum Nieruchomości |
![]() |
![]() edyta@cn.info.pl |

















