
Numer oferty: 439 263
Łącznie jest to 47,02m2 powierzchni użytkowej.
Wnętrze utrzymane jest w nowoczesnej, uniwersalnej stylistyce - białe ściany i listwy przypodłogowe optycznie powiększają przestrzeń, a wysokiej jakości panele na podłogach nadają całości ciepły i przytulny charakter. Komfort użytkowania podnosi ogrzewanie podłogowe w całym mieszkaniu (promienniki na podczerwień). Lokal jest bez instalacji gazowej, co zwiększa bezpieczeństwo i wygodę.
Nieruchomość znajduje się na 1 piętrze kamienicy, w atrakcyjnej lokalizacji w niedalekiej odległości od Jasnych Błoni.
Okolica zapewnia doskonałe warunki do życia - w pobliżu znajdują się przystanki kominikacji miejskiej, sklepy, restauracje, oraz pełna infrastuktura niezbędna na co dzień.
To idealna propozycja zarówno dla osób szukających komfortowego miejsca do zamieszkania, jak i pod inwestycję.*powyższe informacje zostały sporządzone na podstawie oświadczeń i nie są ofertą w rozumieniu przepisów prawa - zalecamy ich osobistą weryfikację.

Stylowe mieszkanie w kamienicy - po generalnym remoncie, gotowe do wprowadzenia.
Na sprzedaż wyjątkowe, w pełni odnowione mieszkanie 3-pokojowe o funkcjonalnym układzie pomieszczeń.
Lokal został wykończony z dbałością o detale, przy użyciu materiałów wysokiej jakości.
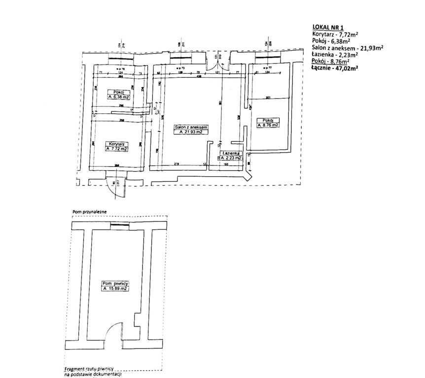
Mieszkanie składa się z:
- ustawnego korytarza (7,72m2)
- przestronnego salonu z aneksem kuchennym (21,93m2)
- dwóch pokoi (6,38m2 i 8,76m2)
- stylowej łazienki z prysznicem (2,23m2)
- balkonu z widokiem na odrestaurowane kamienice
Łącznie jest to 47,02m2 powierzchni użytkowej.
Wnętrze utrzymane jest w nowoczesnej, uniwersalnej stylistyce - białe ściany i listwy przypodłogowe optycznie powiększają przestrzeń, a wysokiej jakości panele na podłogach nadają całości ciepły i przytulny charakter. Komfort użytkowania podnosi ogrzewanie podłogowe w całym mieszkaniu (promienniki na podczerwień). Lokal jest bez instalacji gazowej, co zwiększa bezpieczeństwo i wygodę.
Nieruchomość znajduje się na 1 piętrze kamienicy, w atrakcyjnej lokalizacji w niedalekiej odległości od Jasnych Błoni.
Okolica zapewnia doskonałe warunki do życia - w pobliżu znajdują się przystanki kominikacji miejskiej, sklepy, restauracje, oraz pełna infrastuktura niezbędna na co dzień.
To idealna propozycja zarówno dla osób szukających komfortowego miejsca do zamieszkania, jak i pod inwestycję.*powyższe informacje zostały sporządzone na podstawie oświadczeń i nie są ofertą w rozumieniu przepisów prawa - zalecamy ich osobistą weryfikację.

![]() |
Kalkulator opłat dodatkowych |
![]() |
Drukuj tę ofertę ze zdjęciami |
![]() |
Drukuj tę ofertę z miniaturkami |
![]() |
Drukuj tę ofertę bez zdjęć |

| miejscowość: | SZCZECIN |
|---|---|
| dzielnica - osiedle: | CENTRUM |
| cena ofertowa PLN: | 549 000 |
| pow. całkowita [m²]: | 47,02 |
| cena ofertowa za 1 m2: | 11 675,88 |
| liczba pokoi: | 3 |
| rodzaj budynku: | KAMIENICA |
| rok budowy: | 1 930 |
| piętro: | 1 |
| ilość pięter: | 3 |
| forma własności: | WŁASNOŚĆ |
| czynsz dla spółdz./wspólnoty: | 350 |
| dodatkowe: | BALKON |
| przynależne: | PIWNICA, KOMÓRKA |
| ogrzewanie: | PROMIENNIKI PODCZERWIENI |
| źródło c.w.: | PIEC ELEKTRYCZNY |
| okna: | PCV |

| Centrum Nieruchomości |
![]() |
![]() edyta@cn.info.pl |

















