Numer oferty:
439 300


Totalny HIT INWESTYCYJNY!
Jedno mieszkanie - podwójny potencjał inwestycyjny!
Na sprzedaż wyjątkowa nieruchomość obejmująca dwa w pełni funkcjonalne, niezależne lokale - sprzedawane jako jedna całość.
To doskonałe rozwiązanie dla inwestora - kupujesz jedno mieszkanie, a faktycznie zyskujesz dwa gotowe do wynajmu apartamenty.
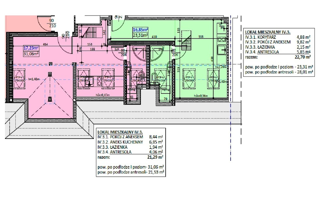
Powierzchnia użytkowa obu lokali to 43,99m2, natomiast powierzchnia całkowita to AŻ 103,81 m2!
Obie części zostały zaprojektowane w przemyślany sposób - każda posiada własną strefę dzienną z aneksem kuchennym, łazienkę oraz antresolę, co maksymalnie zwiększa komfort użytkowania i atrakcyjność najmu.
Całość wykończona w wysokim standardzie, bez konieczności ponoszenia dodatkowych nakładów finansowych.
W pokojach na podłogach panele, ściany i listwy przypodłogowe białe - co optycznie powiększa nam pomieszczenia. Łazienka z prysznicem wykończona w stylowy sposób.
W mieszkaniach zastosowano ogrzewanie podłogowe (promienniki podczerwieni), w lokalach nie ma gazu - co dodatkowo zwiększa poczucie bezpieczeństwa.
Wysoki standard wykończenia podwyższa atrakcyjność tej oferty.
Dodatkowo do mieszkania przynależy piwnica - zostanie wydzielona po odbiorze. W gratisie przyszli właściciele zyskują również OGRÓDEK z tyłu budynku.
Elewacja bloku oraz klatka zostały odnowione.
Nieruchomość położona jest w cichej i spokojnej okolicy, ale nadal w centrum i z doskonałą infrastrukturą w pobliżu - nieopodal znajdują się sklepy, punkty usługowe, komunikacja miejska i tereny zielone.
To gotowa inwestycja, która może generować stabilny dochód od pierwszego dnia - bez rementów, stresów i zbędnego czekania.
Nie czekaj, umów się na prezentację i sam przekonaj się o wyjątkowości tej oferty.
Zapraszam!*powyższe informacje zostały sporządzone na podstawie oświadczeń i nie są ofertą w rozumieniu przepisów prawa - zalecamy ich osobistą weryfikację.
