Numer oferty: 430 454

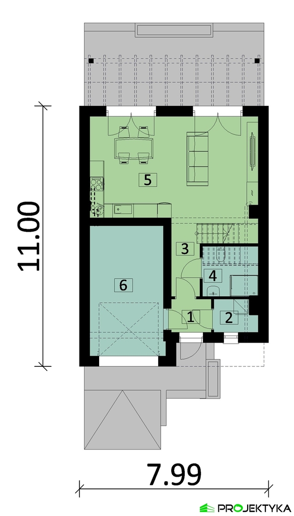
Powstaje nowa inwestycja w samym centrum TanowaDomy z zabudowie bliźniaczej z garażem oraz ogródkami przy ulicy Szczecińskiej.Docelowo inwestycja składać się będzie z dwóch domów w zabudowie szeregowej po 2 segmenty. (Łącznie 4 szeregowców)Powierzchnia użytkowa to 121,04m2.Stan deweloperski, budynek jednorodzinny w zabudowie szeregowej .Nieruchomość o bardzo funkcjonalnym rozkładzie pomieszczeń.Przemyślany, funkcjonalny projekt, który zapewni wygodę i przyjemność z przebywania.Na parterze salon z wyjściem na taras oraz ogródek, kuchnia, WC , schowek ,wiatrołap oraz garażu ok 18,5m2Z salonu wyjście na piękny ogródek poprzez taras.Piętro - cztery pokoje, łazienka z WC oraz korytarz.Fundamenty:- ławy żelbetowe beton- izolacja przeciwwilgociowa- izolacja termiczna ścian fundamentowych styropian fundamentowy wodoodpornyŚciany: nośne dwuwarstwowe z bloczków silikatowych . Działowe z bloczków silikatowych.Komin kominkowy - komin systemowy JAWAR .Dach: więźba dachowa drewniana, dachówka ceramiczna, rynny PCV, obróbki blacharskie z blachy stalowej ocynkowanej lub cynkowejOkna; PCV, trzyszybowe, ciepły montażDrzwi tarasowe rozsuwaneSchody wewnętrzne monolityczne żelbetowe.Ocieplenie budynku- styropian zakończony pucem.Ogrzewanie pompa ciepła , ogrzewanie podłogowe w całym domu i grzejniki łazienkowe.Teren: ogrodzenie przydomowych ogródków - z paneli, dojścia do budynkówPowierzchnia działki na którym posadowione są dwa budynki to powierzchnia 1203 m2.Nieruchomość ogrodzona. Dojazd drogą główną asfaltową. Dobry dojazd do Szczecina oraz Polic.W pobliżu przystanki autobusowe, szkoła podstawowa oraz małe sklepiki oraz Dino.Wysoki standard wykończenia, bliskość do centrum miasta a jednocześnie spokój, cisza oraz bezpieczna okolica gwarantuje komfort zamieszkania.Przewidywany termin zakończenia inwestycji IV kwartał 2026 roku.Lokalizacja spokojna, zielona, w sąsiedztwie domów jednorodzinnych.Nie zwlekaj i już dziś zarezerwuj swój wymarzony dom! Kupując tą nieruchomość nie płacisz PCC! Sprzedaż na podstawie umowy deweloperskiej.Zapraszam na prezentację!*powyższe informacje zostały sporządzone na podstawie oświadczeń i nie są ofertą w rozumieniu przepisów prawa - zalecamy ich osobistą weryfikację.

Kalkulator opłat dodatkowych
Drukuj tę ofertę ze zdjęciami
Drukuj tę ofertę z miniaturkami
Drukuj tę ofertę bez zdjęć
Share |
miejscowość:TANOWO
typ domu:SEGMENT SKRAJNY
cena ofertowa PLN:939 000
pow. całkowita [m²]:121,04
pow. użytkowa [m²]:121,04
pow. działki [m²]:1 203
liczba pokoi:5
standard:DO WYKOŃCZENIA
rok budowy:2 025
materiał ścian:MIESZANY
źródło c.w.:POMPA CIEPŁA
przynależne:OGRÓDEK, TARAS
forma własności działki:WŁASNOŚĆ
Centrum Nieruchomości


edyta@cn.info.pl

Imię i nazwisko
Twój e-mail
Twój telefon
Temat
Treść
Czy jesteś botem?
Wyślij kopię również do mnie