Numer oferty:
438 583


.Na sprzedaż działka z rozpoczętą budową domu, zlokalizowana w cichej okolicy, blisko Zalewu Kamieńskim - Zatoka Wrzosowska oraz zaledwie 3 km od plaży w Dziwnówku.
Działka (2,172 m2) ogrodzona - zadbany trawnik, liczne nasadzenia; dojazd drogą z kostki brukowej.
Obecnie dom w stanie surowym zamkniętym.
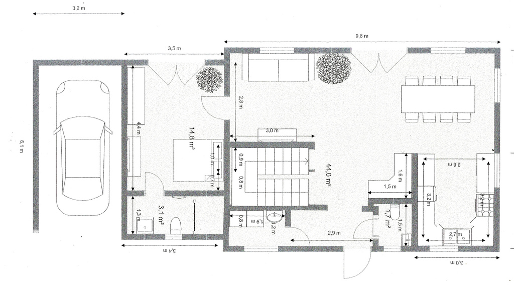
Na parterze :
- duży salon z jadalnią , od strony południowej,
- kuchnia,
- łazienka,
- kotłownia,
- pokój z własna łazienką.
Na piętrze :
- 4 pokoje, w tym jeden z garderobą.
- łazienka.
Dodatkowo poddasze.
W salonie przewidziane miejsce pod kominek.
Z górnych pokoi widok na Zalew.
Dom budowany w technologii tradycyjnej - ściany z POROTHERM , strop żelbetowy lany , okna PCV, dachówka ceramiczna.
W budynku rozciągnięta sieć elektryczna.
Do wykonania pozostało :
- instalacja wod - kan,
- ogrzewanie,
- tynki,
- ocieplenie ścian i poddasza.
Na tym etapie można jeszcze zmienić ustawienie ścianek i rozmieszczenie pomieszczeń.
Garaż w formie wiaty przylegającej do budynku.
Ogrzewanie i ciepła woda z pieca gazowego dwu-obiegowego.
Na działce skrzynka ZK, podłączenie wody i kanalizacji, oraz gaz.
Gmina jest jeszcze w trakcie uchwalania Planu Ogólnego, dzięki czemu można wystąpić o WZ lub zapis w planie o dodatkową zabudowę (np. domem mieszkalnym lub letniskowymi) lub wystąpić o podział działki na mniejsze.
Właściciel wystąpił o zgodę na dwa małe budynki letniskowe pod wynajem.
*powyższe informacje zostały sporządzone na podstawie oświadczeń i nie są ofertą w rozumieniu przepisów prawa - zalecamy ich osobistą weryfikację.
